MAISONS CRÉATION vous propose un projet de construction situé à Saint-Thurial, à proximité immédiate du bourg, dans un environnement agréable et recherché.
Le projet est implanté sur un terrain de 366 m², offrant une belle luminosité et un jardin appréciable.
Maison familiale – 4 chambres – Garage
Cet exemple de maison se compose :
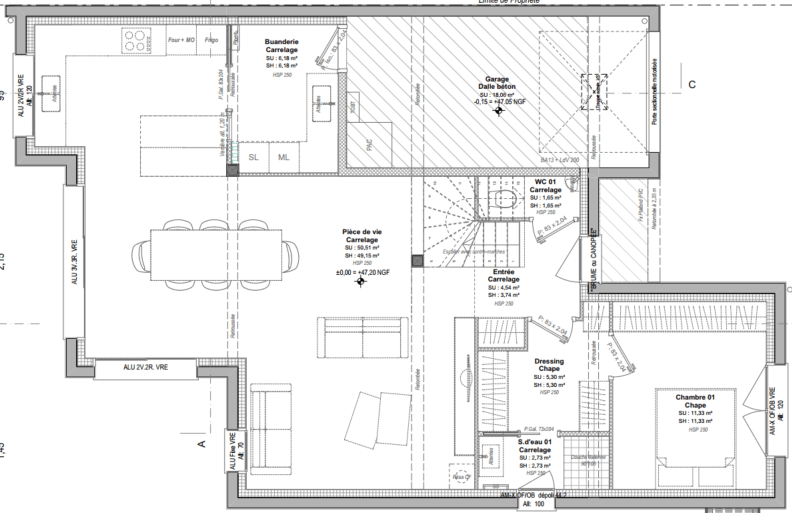
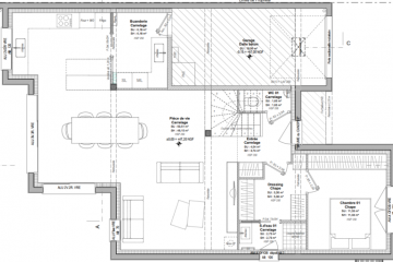
Au rez-de-chaussée :
- Une entrée
- Un salon / séjour de 45 m² avec cuisine ouverte
- Une chambre avec salle d’eau privative
- Des WC séparés
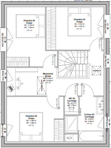
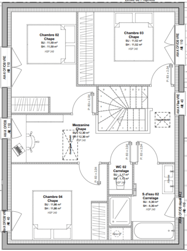
À l’étage :
- 3 chambres d’environ 11 m² avec placards
- Une salle de bains
- Des WC séparés
Annexes
- Un garage attenant
NON MANDATÉ POUR LA VENTE DES TERRAINS
Maisons Création Rennes agit uniquement en qualité de constructeur.
Projet proposé sous réserve de disponibilité de notre partenaire foncier.
Pour plus de renseignements, contactez notre équipe commerciale MAISONS CRÉATION : 02 99 05 36 46
Informations complémentaires
| Chambre(s) : 4 | Salle(s) de bain : 2 | Surface habitable : 110 m² |
| Surface terrain : 366 m² | Surface annexe : 45 m² | Garage(s) : 1 |
| Prix : 273 000 € |
Géolocalisation du bien
*Terrain proposé et vendu par notre partenaire foncier selon disponibilité et autorisation de publicité, prix du terrain hors frais de notaire et d’hypothèque.
Prix maison : hors papiers peints, peintures, revêtements de sol dans les chambres, cuisines, meubles vasques, et faïences (modifiable sans préavis, prix variables suivant les prestations souhaitées) hors frais d’hypothèque.





