MAISONS CRÉATION vous propose un projet de construction RE2020 situé à Saint-Briac-sur-Mer, dans un environnement calme et verdoyant, à proximité immédiate des commodités et des superbes plages de la commune.
Le projet est implanté sur un terrain de 348 m², offrant un cadre de vie privilégié à quelques minutes du littoral.
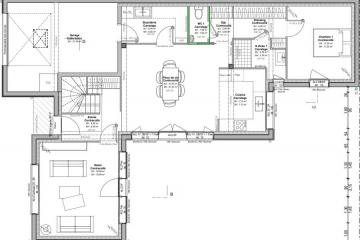
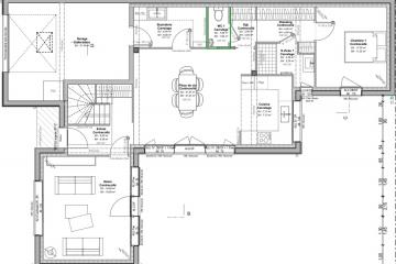
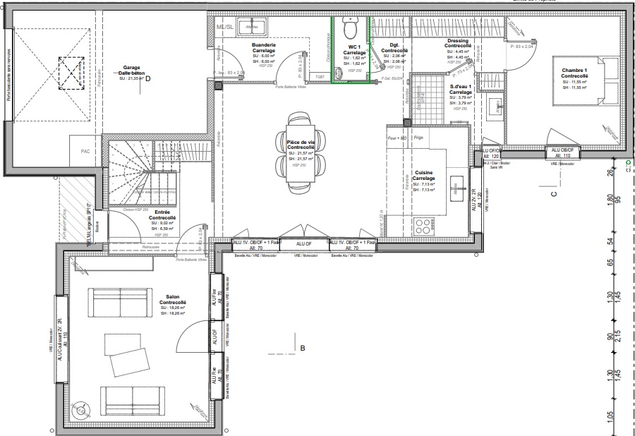
Cet exemple de maison RE2020 développe 127 m² habitables et se compose :
Au rez-de-chaussée :
- Un vaste espace de vie lumineux, bénéficiant d’une triple exposition
- Un accès à une terrasse exposée plein SUD, intimisée
- Une suite parentale avec dressing et salle d’eau privative
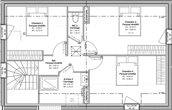
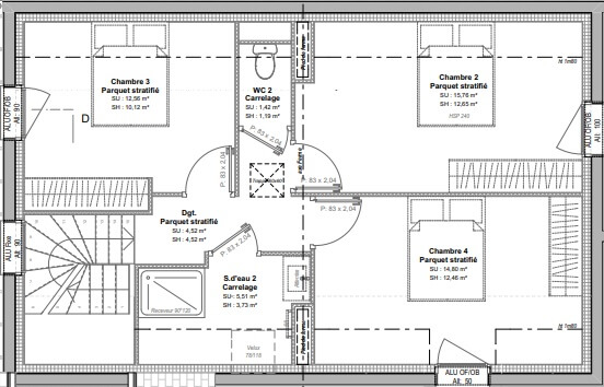
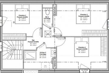
À l’étage :
- 3 belles chambres
- Une salle de bains
- Un WC indépendant
Annexes et stationnement
- Un garage de 21 m²
- Deux places de stationnement extérieures
Projet entièrement personnalisable.
Prix incluant terrain, garanties et assurances
(hors frais annexes et finitions).
Pour plus de renseignements et étudier votre projet, contactez notre équipe commerciale MAISONS CRÉATION : 02 99 05 36 46
Informations complémentaires
| Chambre(s) : 4 | Salle(s) de bain : 2 | Surface habitable : 127 m² |
| Surface terrain : 468 m² | Surface annexe : 47 m² | Garage(s) : 1 |
| Prix : 665 000 € |
Géolocalisation du bien
*Terrain proposé et vendu par notre partenaire foncier selon disponibilité et autorisation de publicité, prix du terrain hors frais de notaire et d’hypothèque.
Prix maison : hors papiers peints, peintures, revêtements de sol dans les chambres, cuisines, meubles vasques, et faïences (modifiable sans préavis, prix variables suivant les prestations souhaitées) hors frais d’hypothèque.






