MAISONS CRÉATION vous propose un projet de construction personnalisable situé au cœur de Pleugueneuc, entre Rennes et Saint-Malo, au sein d’un petit lotissement au calme, offrant un cadre de vie privilégié.
Le projet est implanté sur un terrain de 412 m².
Maison fonctionnelle – 3 chambres – Garage
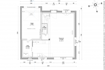
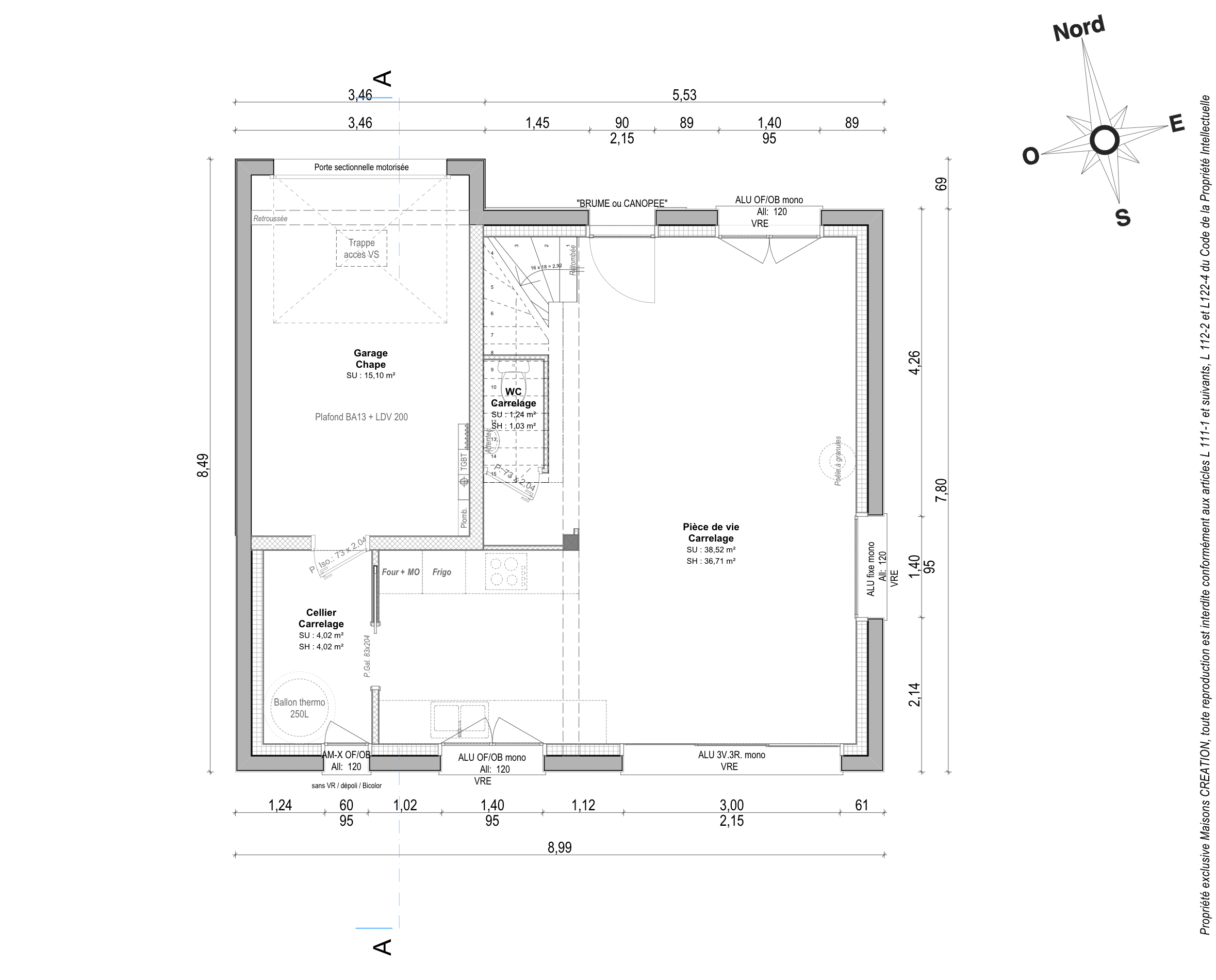
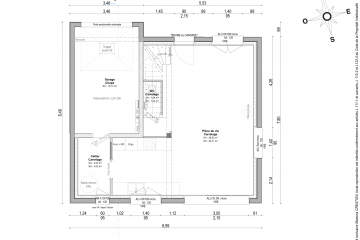
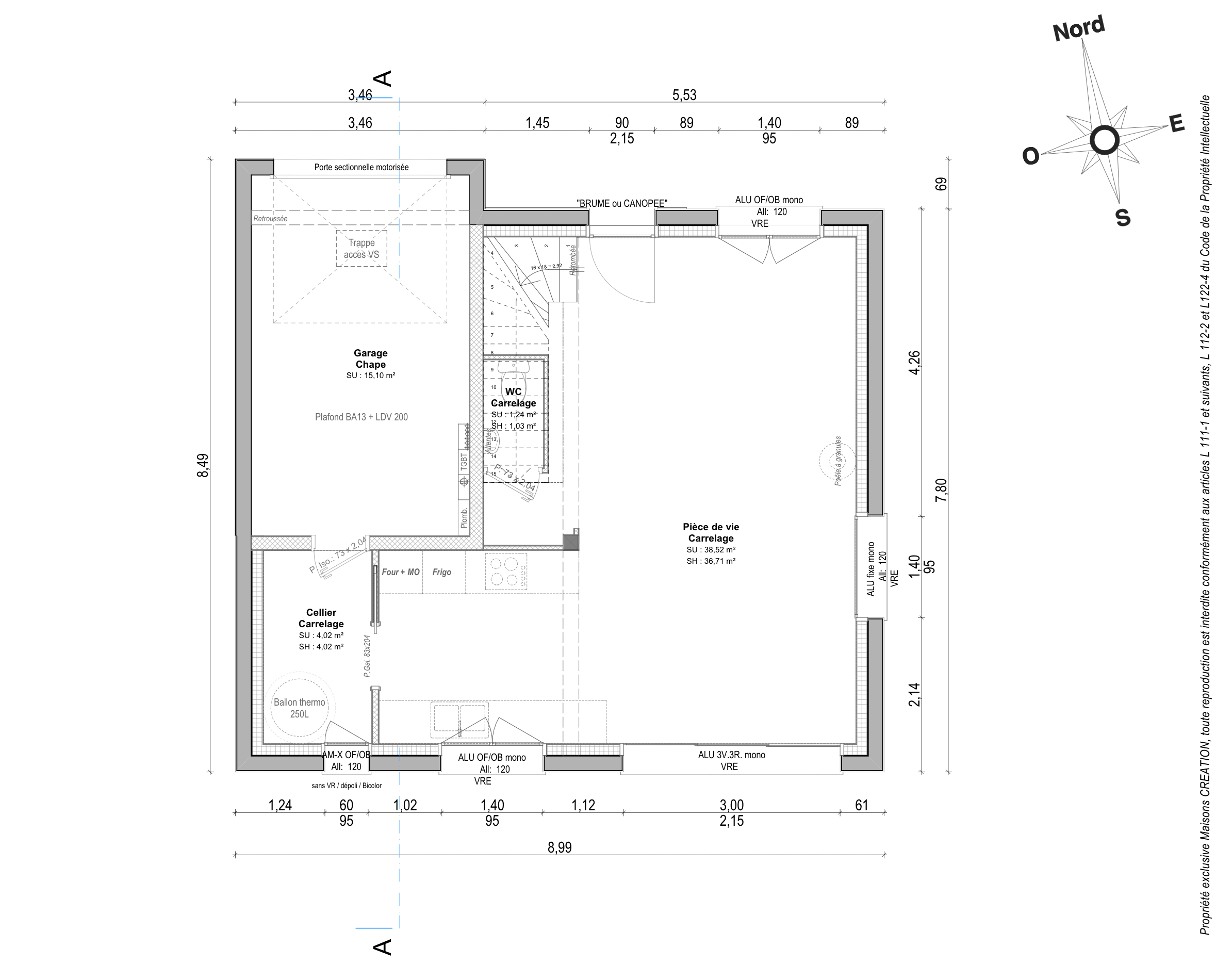
Cet exemple de maison se compose :
Au rez-de-chaussée :
- Une belle pièce de vie spacieuse et lumineuse, grâce à de nombreuses ouvertures
- Un espace cuisine ouvert sur le salon / séjour
- Une arrière-cuisine communicante avec la cuisine et le garage
- Un hall d’entrée spacieux avec grand placard
- Un WC
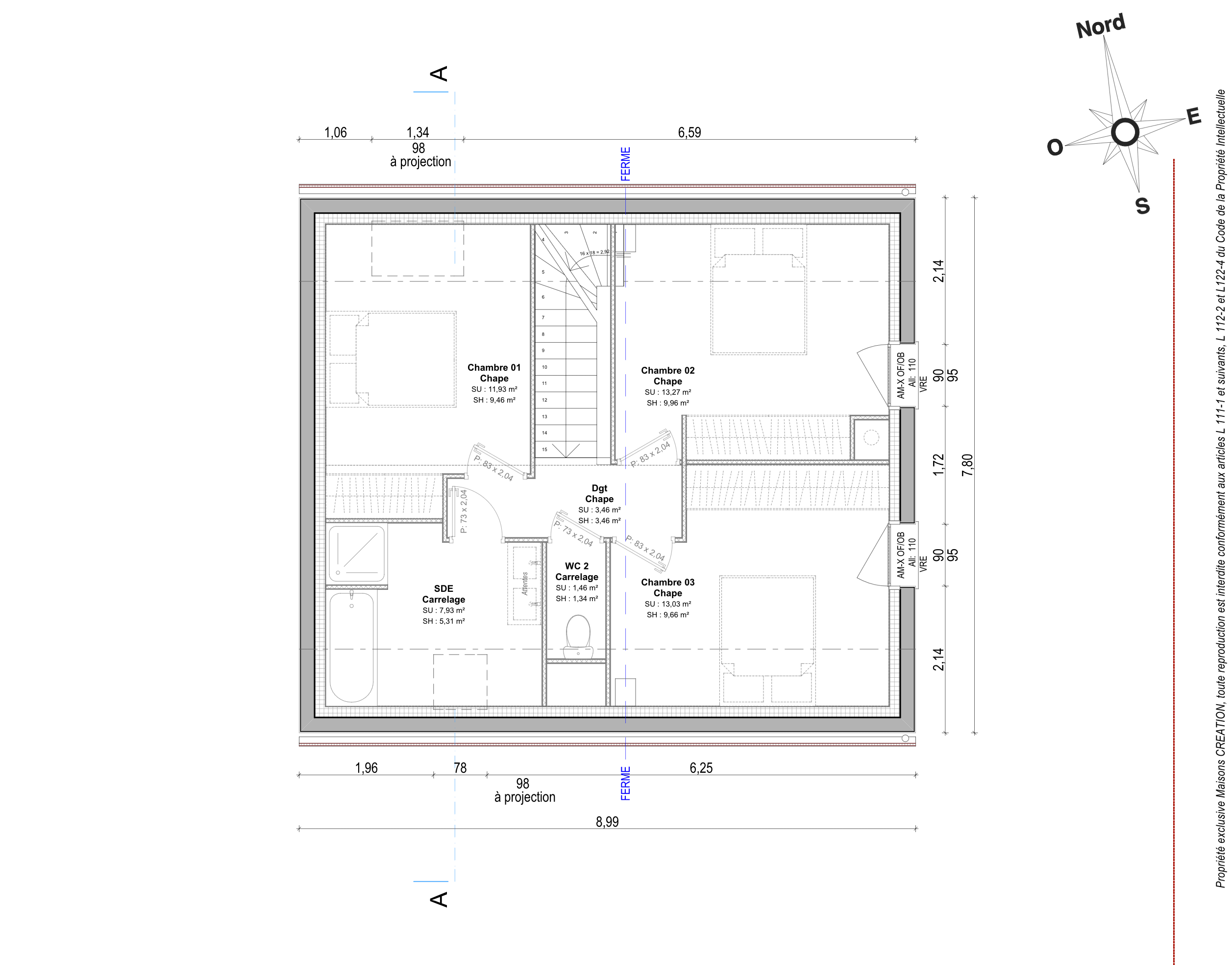
À l’étage :
- 3 chambres, toutes équipées d’un placard
- Une salle d’eau avec WC
Pour votre confort et conformément à la RE2020, la maison est équipée d’un système de chauffage par pompe à chaleur, d’un plancher chauffant et de volets roulants électriques.
Ce projet est entièrement personnalisable, tant dans la conception intérieure et architecturale que dans le choix des prestations.
Pour de plus amples renseignements, contactez notre équipe commerciale MAISONS CRÉATION : 02 99 05 36 46
Informations complémentaires
| Chambre(s) : 3 | Salle(s) de bain : 1 | Surface habitable : 81 m² |
| Surface terrain : 426 m² | Surface annexe : 40 m² | Garage(s) : 1 |
| Prix : 236 000 € |
Géolocalisation du bien
*Terrain proposé et vendu par notre partenaire foncier selon disponibilité et autorisation de publicité, prix du terrain hors frais de notaire et d’hypothèque.
Prix maison : hors papiers peints, peintures, revêtements de sol dans les chambres, cuisines, meubles vasques, et faïences (modifiable sans préavis, prix variables suivant les prestations souhaitées) hors frais d’hypothèque.





