Idéal pour une résidence secondaire ou pour y passer une retraite paisible et apaisée à proximité de la mer.
La commune de PLURIEN (22) se situe à proximité des pôles d'emplois de Saint-Brieuc, de Dinan et de la Cote d'Emeraude, vous serez situé sur les axes Morlaix / Dinard et Hillion / Cap Fréhel
MAISONS CREATION DINAN vous propose de construire votre maison personnalisée RE 2020 sur un terrain de 415 m2.
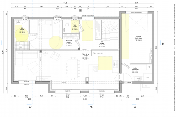
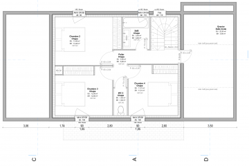
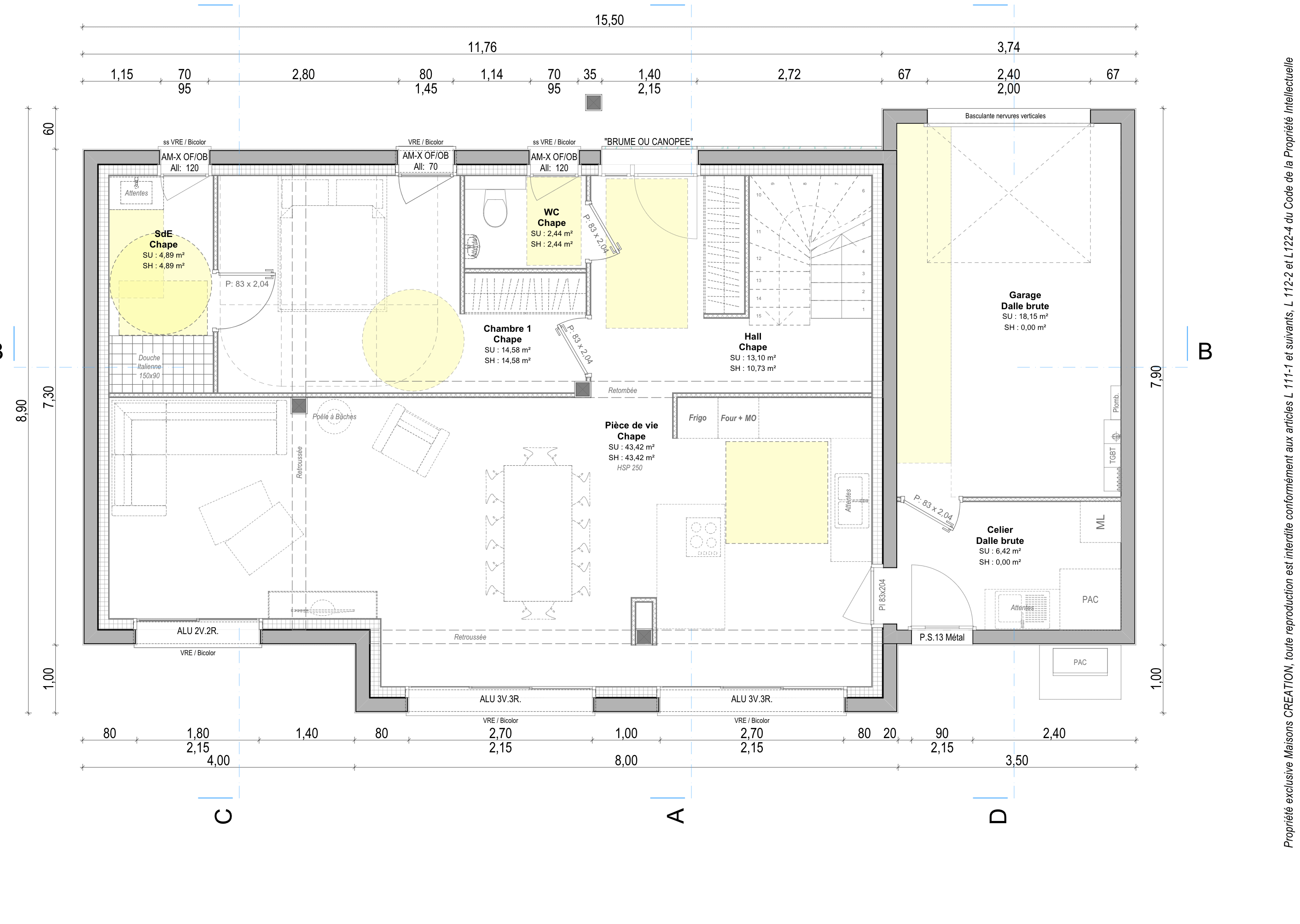
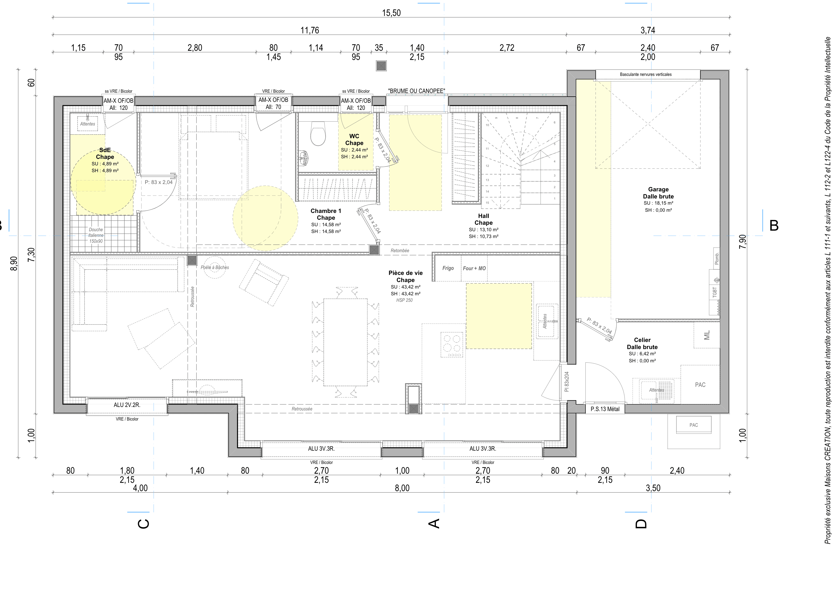
D'une superficie de 124 m², disposant au rez-de-chaussée d'un espace de vie très lumineux, d'une suite parentale avec dressing et d'un garage.
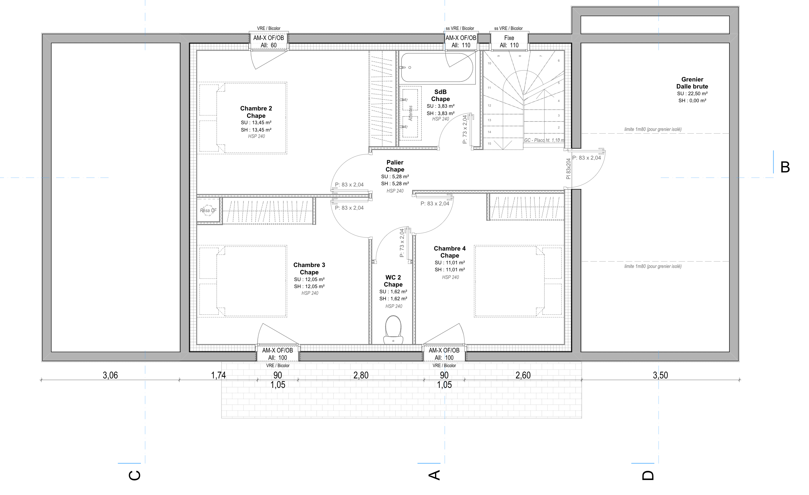
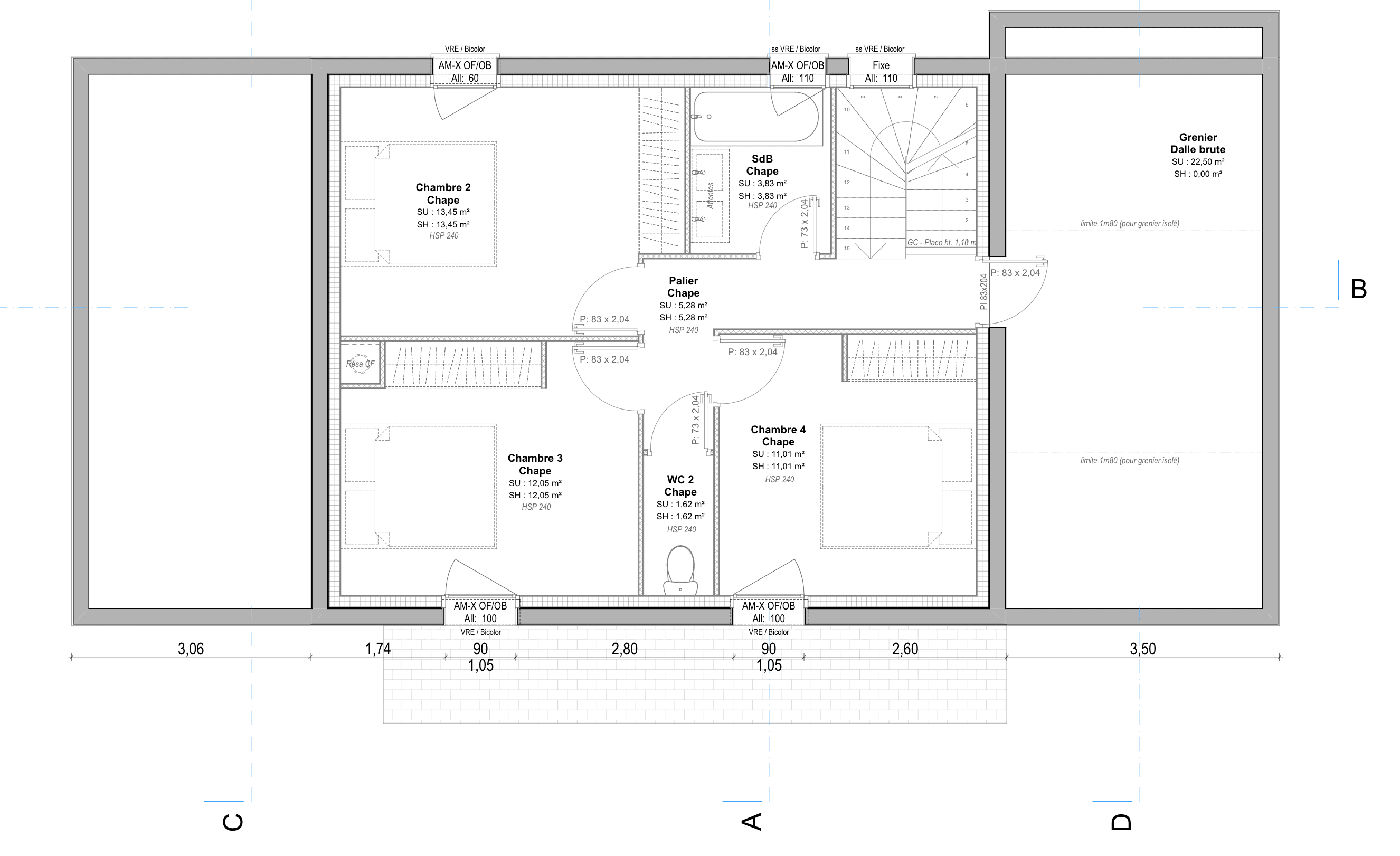
À l'étage, vous trouverez trois belles chambres et une salle de bains.
Chez MAISONS CREATION DINAN, nous personnalisons intégralement tous nos projets, en ce qui concerne la conception intérieure et architecturale, ainsi que le niveau de prestations et/ou de matériaux que vous souhaitez.
*Terrain proposé et vendu par notre partenaire foncier selon disponibilité et autorisation de publicité, prix du terrain hors frais de notaire et d’hypothèque.
Prix maison : hors papiers peints, peintures, revêtements de sol dans les chambres, cuisines, meubles vasques, et faïences (modifiable sans préavis, prix variables suivant les prestations souhaitées) hors frais d’hypothèque.
Informations complémentaires
| Chambre(s) : 4 | Salle(s) de bain : 2 | Surface habitable : 124 m² |
| Surface terrain : 415 m² | Surface annexe : 46 m² | Garage(s) : 1 |
| Prix : 310 000 € |
Géolocalisation du bien
*Terrain proposé et vendu par notre partenaire foncier selon disponibilité et autorisation de publicité, prix du terrain hors frais de notaire et d’hypothèque.
Prix maison : hors papiers peints, peintures, revêtements de sol dans les chambres, cuisines, meubles vasques, et faïences (modifiable sans préavis, prix variables suivant les prestations souhaitées) hors frais d’hypothèque.





