Situé au cœur du quartier résidentiel du Vallon des Fresches à Vignoc, MAISONS CRÉATION vous propose un projet de construction entièrement personnalisable.
Sur un terrain de 382 m², dans un environnement calme et agréable, nous vous suggérons une maison à étage de 110 m².
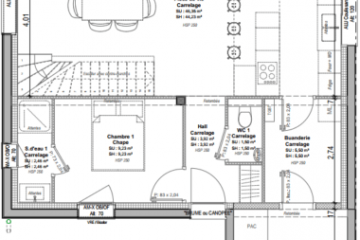
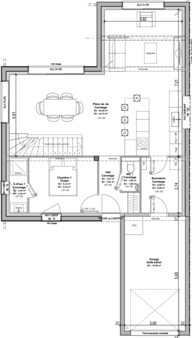
Au rez-de-chaussée : une entrée donnant sur une vaste pièce de vie de 45 m² avec cuisine ouverte et salon bénéficiant d’une belle hauteur sous plafond (3 m) avec poutres apparentes. Vous profiterez également d’une chambre avec salle d’eau, d’une buanderie (arrière-cuisine) et de WC indépendants.
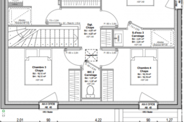
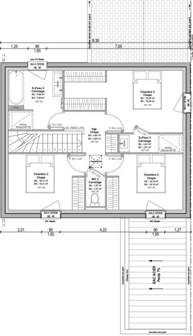
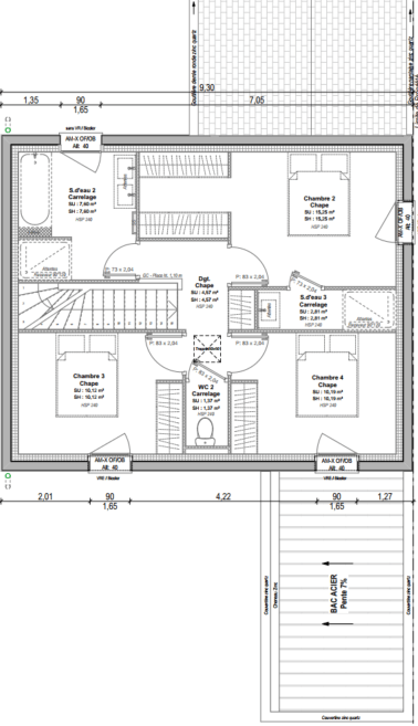
À l’étage : trois chambres avec placards intégrés, dont une suite parentale avec dressing et salle d’eau privative, ainsi qu’une salle de bains familiale et des WC séparés.
Un garage vient compléter l’ensemble.
Pour de plus amples renseignements contacter notre équipe commerciale MAISONS CREATION – 02 99 05 36 46.
Informations complémentaires
| Chambre(s) : 4 | Salle(s) de bain : 3 | Surface habitable : 110 m² |
| Surface terrain : 382 m² | Surface annexe : 45 m² | Garage(s) : 1 |
| Prix : 308 600 € |
Géolocalisation du bien
*Terrain proposé et vendu par notre partenaire foncier selon disponibilité et autorisation de publicité, prix du terrain hors frais de notaire et d’hypothèque.
Prix maison : hors papiers peints, peintures, revêtements de sol dans les chambres, cuisines, meubles vasques, et faïences (modifiable sans préavis, prix variables suivant les prestations souhaitées) hors frais d’hypothèque.





