MAISONS CRÉATION vous propose un projet de construction personnalisable situé à Saint-Samson-sur-Rance, à 35 minutes de Saint-Malo, 8 minutes de Plouër-sur-Rance et 15 minutes de Dinan.
Le projet est implanté sur un terrain de 332 m², avec un accès Nord, situé en plein cœur du bourg, à quelques mètres de toutes les commodités, dans un cadre paisible et verdoyant, à proximité de la Rance.
Maison RE2020 – 124 m² – 4 chambres – Garage
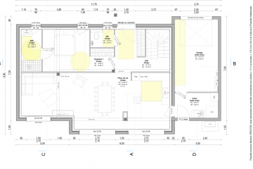
Cet exemple de maison à étage, conforme à la RE2020, d’une surface habitable de 124 m², se compose :
Au rez-de-chaussée :
- Un espace de vie très lumineux
- Une suite parentale avec dressing
- Un garage
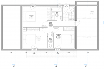
À l’étage :
- 3 chambres
- Une salle de bains
Ce projet est entièrement personnalisable, tant dans la conception intérieure et architecturale que dans le niveau de prestations souhaité.
Pour plus de renseignements, contactez notre équipe commerciale MAISONS CRÉATION : 02 99 05 36 46
Informations complémentaires
| Chambre(s) : 4 | Salle(s) de bain : 1 | Surface habitable : 124 m² |
| Surface terrain : 702 m² | Surface annexe : 46 m² | Garage(s) : 1 |
| Prix : 326 000 € |
Géolocalisation du bien
*Terrain proposé et vendu par notre partenaire foncier selon disponibilité et autorisation de publicité, prix du terrain hors frais de notaire et d’hypothèque.
Prix maison : hors papiers peints, peintures, revêtements de sol dans les chambres, cuisines, meubles vasques, et faïences (modifiable sans préavis, prix variables suivant les prestations souhaitées) hors frais d’hypothèque.




