Maison neuve à Construire à SAINT SAMSON SUR RANCE à seulement 35 minutes de Saint Malo, 8 de Plouer sur Rance et seulement 15 minutes de Dinan
Situé dans un cadre paisible et verdoyant à proximité de la Rance, terrain de 332 m² avec un accès Nord en plein cœur du bourg à seulement quelques mètres de toutes ses commodités.
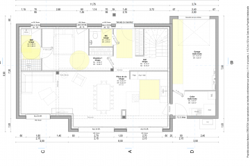
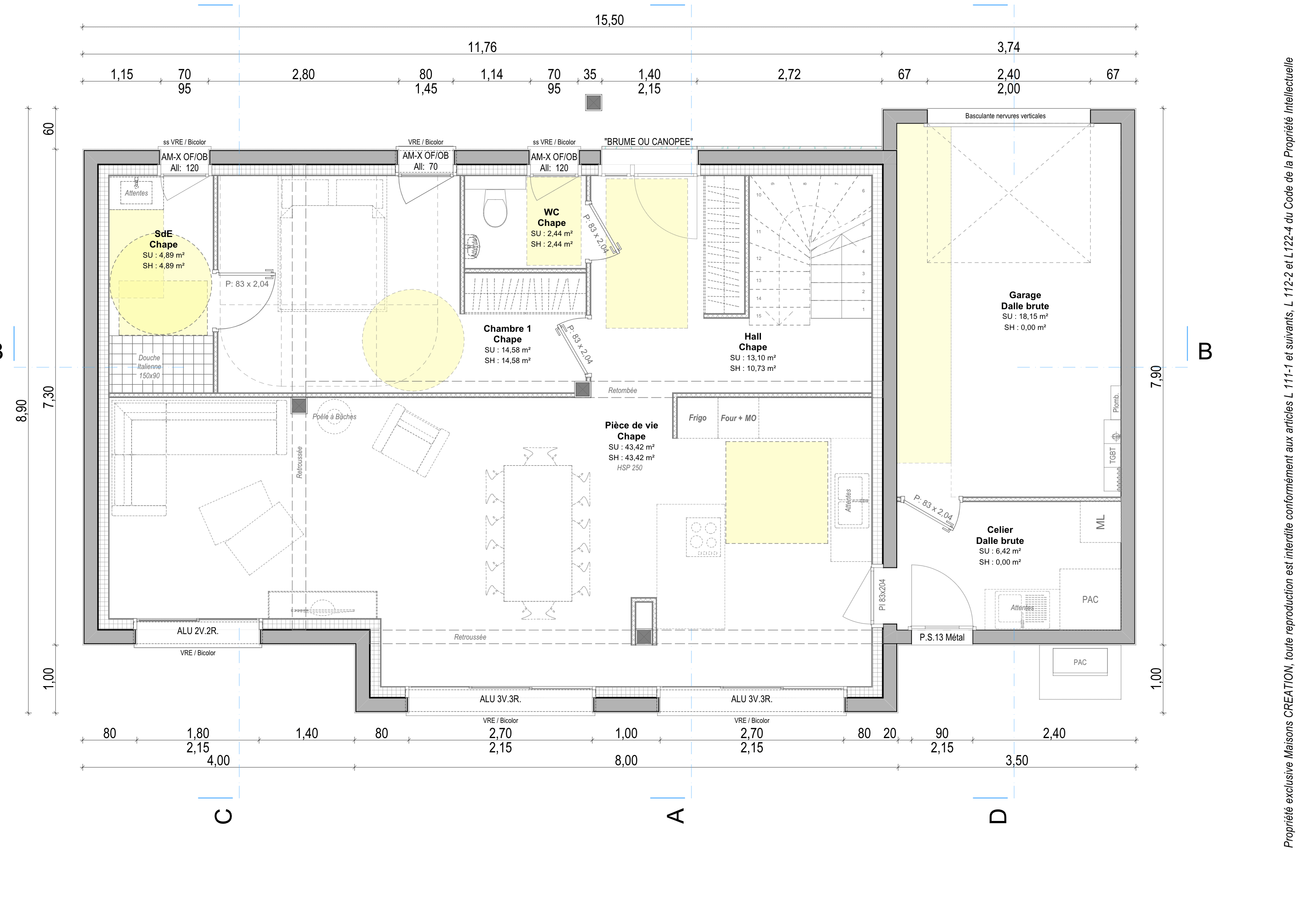
Nous vous proposons une maison RE2020 à étage à personnaliser d'une superficie de 124 m² disposant au rez-de-chaussée d'un espace de vie très lumineux, d'une suite parentale avec dressing et d'un garage.
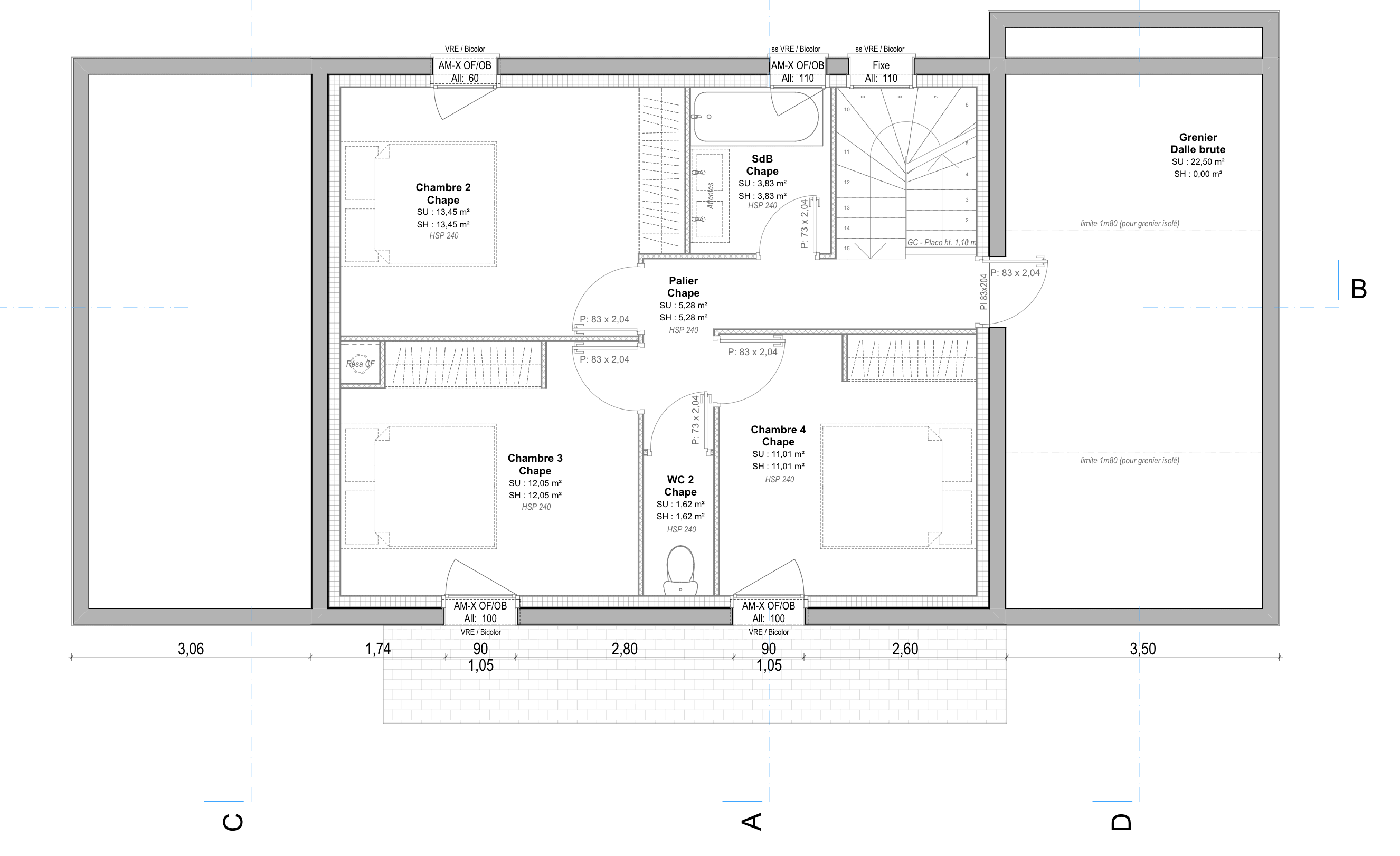
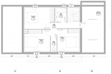
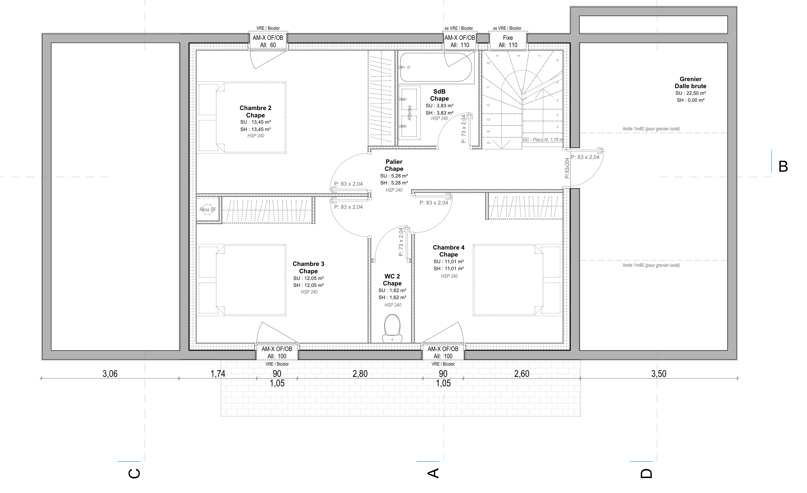
À l'étage, vous trouverez trois belles chambres et une salle de bains.
Chez Maisons Création, nous personnalisons intégralement tous nos projets, en ce qui concerne la conception intérieure et architecturale, ainsi que le niveau de prestations souhaité.
*Terrain proposé et vendu par notre partenaire foncier selon disponibilité et autorisation de publicité, prix du terrain hors frais de notaire et d’hypothèque.
Prix maison : hors papiers peints, peintures, revêtements de sol dans les chambres, cuisines, meubles vasques, et faïences (modifiable sans préavis, prix variables suivant les prestations souhaitées) hors frais d’hypothèque.
Informations complémentaires
| Chambre(s) : 4 | Salle(s) de bain : 1 | Surface habitable : 124 m² |
| Surface terrain : 702 m² | Surface annexe : 46 m² | Garage(s) : 1 |
| Prix : 326 000 € |
Géolocalisation du bien
*Terrain proposé et vendu par notre partenaire foncier selon disponibilité et autorisation de publicité, prix du terrain hors frais de notaire et d’hypothèque.
Prix maison : hors papiers peints, peintures, revêtements de sol dans les chambres, cuisines, meubles vasques, et faïences (modifiable sans préavis, prix variables suivant les prestations souhaitées) hors frais d’hypothèque.





