MAISONS CRÉATION vous propose un projet de construction situé à Saint-Aubin-du-Cormier, dans une situation idéale, à proximité immédiate du centre bourg.
Le projet est implanté sur un terrain de 327 m², offrant un jardin et une belle luminosité. Vous profitez d’un emplacement privilégié, à 5 minutes à pied du centre, proche des écoles, de la rue piétonne, ainsi que des commodités et services.
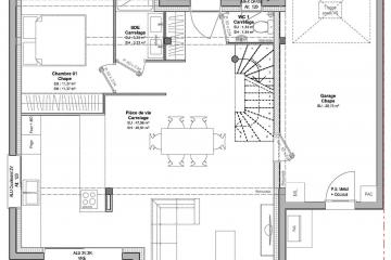
Maison contemporaine – 102 m² – 3 chambres – Garage
Cet exemple de maison contemporaine à étage, composée de 5 pièces et développant 102 m² habitables, se compose :
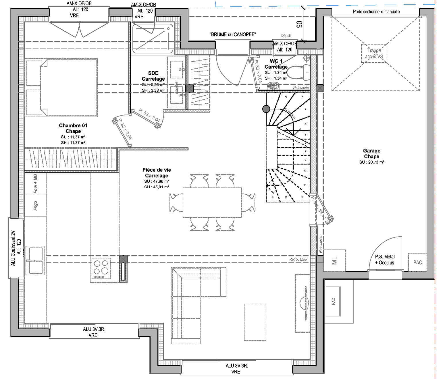
Au rez-de-chaussée :
- Une entrée
- Une cuisine ouverte
- Un salon / séjour de 45 m²
- Une chambre parentale de 11 m² avec salle d’eau et placard
- Des WC séparés
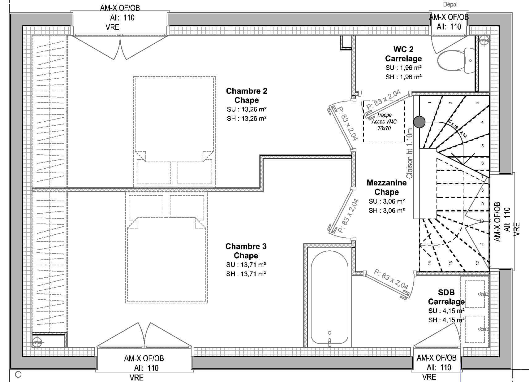
À l’étage :
- 2 chambres de 13 m² avec placards
- Une salle de bains
- Des WC séparés
Annexes
- Un garage attenant
Projet proposé sous réserve de disponibilité de notre partenaire foncier.
Pour plus de renseignements, contactez notre équipe commerciale MAISONS CRÉATION : 02 99 05 36 46
Informations complémentaires
| Chambre(s) : 3 | Salle(s) de bain : 2 | Surface habitable : 102 m² |
| Surface terrain : 327 m² | Surface annexe : 45 m² | Garage(s) : 1 |
| Prix : 278 160 € |
Géolocalisation du bien
*Terrain proposé et vendu par notre partenaire foncier selon disponibilité et autorisation de publicité, prix du terrain hors frais de notaire et d’hypothèque.
Prix maison : hors papiers peints, peintures, revêtements de sol dans les chambres, cuisines, meubles vasques, et faïences (modifiable sans préavis, prix variables suivant les prestations souhaitées) hors frais d’hypothèque.





