MAISONS CRÉATION vous propose un projet de construction situé à Bréal-sous-Montfort, idéal pour un primo-accédant, à proximité immédiate du centre bourg et des écoles (environ 5 minutes à pied).
Le projet est implanté sur un terrain de 371 m², orienté SUD-OUEST, offrant un jardin et une belle luminosité. La maison contemporaine bénéficie d’une couverture monopente zinc.
Maison contemporaine – 95 m² – 4 chambres – Garage
Cet exemple de maison à étage, composée de 5 pièces et développant 95 m² habitables, se compose :
Au rez-de-chaussée :
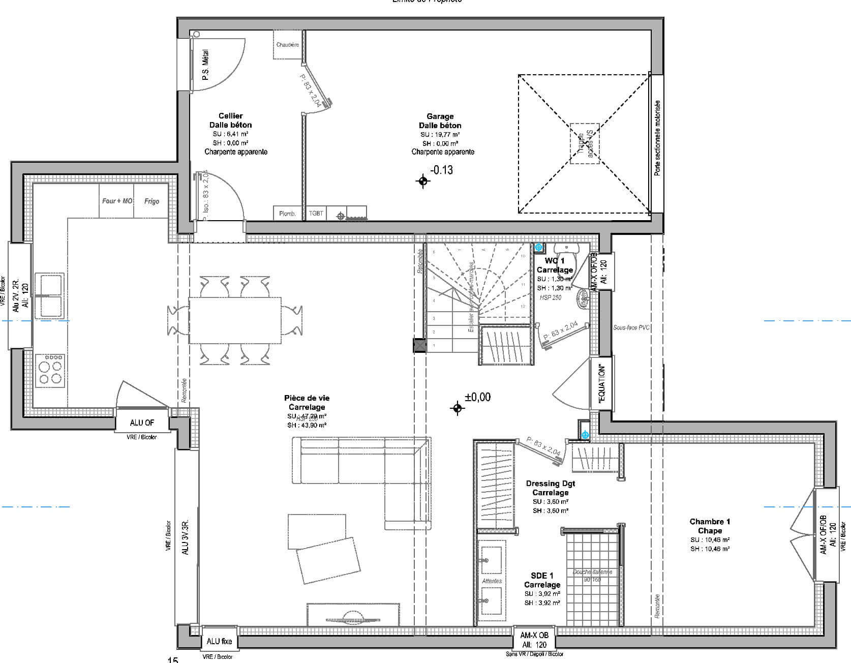
- Une entrée
- Une cuisine ouverte
- Un salon / séjour de 44 m²
- Une chambre parentale avec salle d’eau et dressing
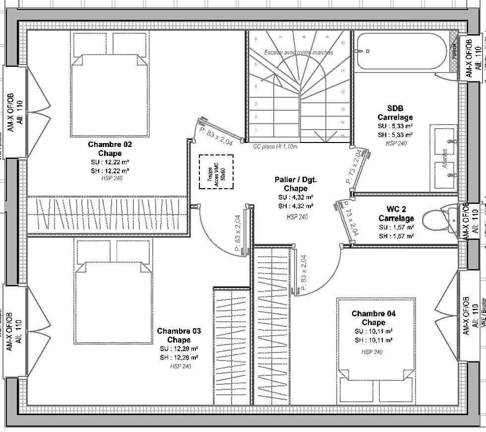
À l’étage :
- 3 chambres avec placards
- Une salle de bain
- Des WC séparés
Annexes
- Un garage attenant
Pour plus de renseignements, contactez notre équipe commerciale MAISONS CRÉATION : 02 99 05 36 46
Informations complémentaires
| Chambre(s) : 4 | Salle(s) de bain : 2 | Surface habitable : 95 m² |
| Surface terrain : 371 m² | Surface annexe : 44 m² | Garage(s) : 1 |
| Prix : 297 000 € |
Géolocalisation du bien
*Terrain proposé et vendu par notre partenaire foncier selon disponibilité et autorisation de publicité, prix du terrain hors frais de notaire et d’hypothèque.
Prix maison : hors papiers peints, peintures, revêtements de sol dans les chambres, cuisines, meubles vasques, et faïences (modifiable sans préavis, prix variables suivant les prestations souhaitées) hors frais d’hypothèque.





