MAISONS CRÉATION vous propose un projet de construction situé à Saint-Aubin-d’Aubigné, à proximité immédiate du bourg et des accès, dans un environnement pratique, proche des écoles et des commerces.
Le projet est implanté sur un terrain de 295 m², offrant une belle luminosité et un jardin agréable.
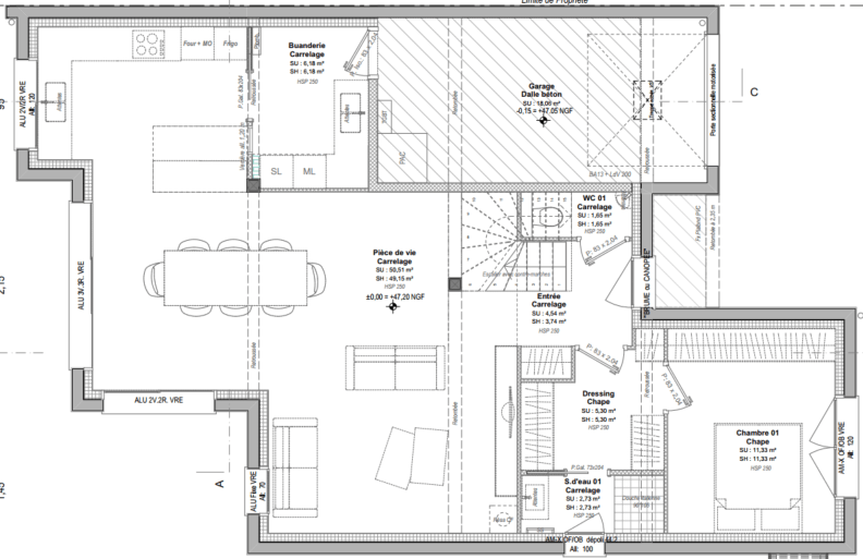
Maison contemporaine à étage – 117 m² – 4 chambres – Garage
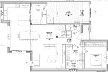
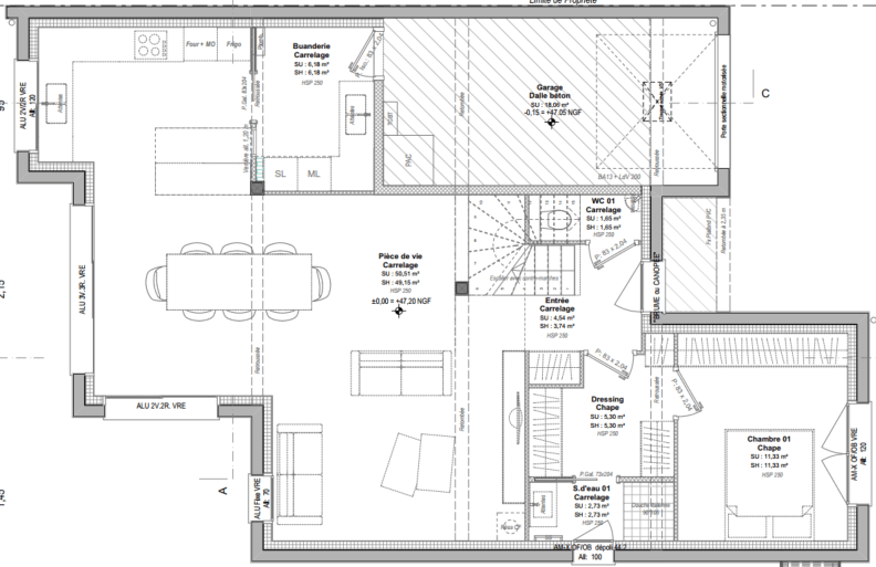
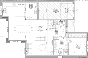
Cet exemple de maison contemporaine, composée de 5 pièces et développant 117 m² habitables, se compose :
Au rez-de-chaussée :
- Une entrée avec placard
- Un salon / séjour / cuisine ouvert de 49 m²
- Une suite parentale avec dressing et salle d’eau
- Des WC séparés
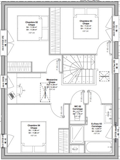
À l’étage :
- 3 chambres de 12 m² avec placards
- Une salle de bains
- Des WC séparés
Annexes
- Un garage attenant
NON MANDATÉ POUR LA VENTE DES TERRAINS
Maisons CREATION Rennes n’est pas chargé de réaliser la vente des terrains à bâtir mentionnés dans ces annonces.
Maisons CREATION Rennes agit seulement en qualité de constructeur.
Sous réserve de disponibilité de notre partenaire foncier.
Pour plus de renseignements, contactez notre équipe commerciale MAISONS CRÉATION : 02 99 05 36 46
Informations complémentaires
| Chambre(s) : 4 | Salle(s) de bain : 2 | Surface habitable : 117 m² |
| Surface terrain : 323 m² | Surface annexe : 49 m² | Garage(s) : 1 |
| Prix : 299 000 € |
Géolocalisation du bien
*Terrain proposé et vendu par notre partenaire foncier selon disponibilité et autorisation de publicité, prix du terrain hors frais de notaire et d’hypothèque.
Prix maison : hors papiers peints, peintures, revêtements de sol dans les chambres, cuisines, meubles vasques, et faïences (modifiable sans préavis, prix variables suivant les prestations souhaitées) hors frais d’hypothèque.





