Idéal Primo-accédant à Pleugueneuc !
Située à proximité de toutes les commodités de cette ville en plein développement, cette maison bénéficie d'une belle luminosité et d'un jardin et 298m².
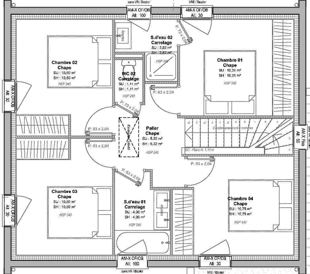
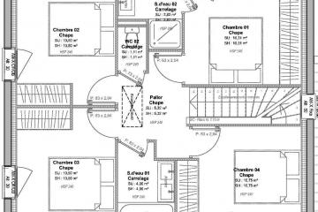
Ses 5 pièces répartie sur 100m² optimisé au maximum comprend 4 chambres dont une suite parentale.
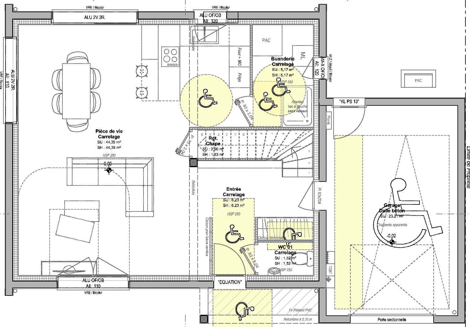
Elle comprend au rez-de-chaussée, une entrée, une cuisine ouverte, un Salon / Séjour de 40m², des WC séparés,
A l'étage, vous pourrez profiter, d'une suite parantale avec salle d'eau privative, 3 chambres avec placard et WC séparé.
Cette maison dispose également d'un garage attenant.
Votre projet Maison + Terrain à partir de 228550€ (Hors frais)
Informations complémentaires
| Chambre(s) : 4 | Salle(s) de bain : 2 | Surface habitable : 100 m² | 
| Surface terrain : 298 m² | Surface annexe : 40 m² | Garage(s) : 1 | 
| Prix : 228 550 € | 
Géolocalisation du bien
            *Terrain proposé et vendu par notre partenaire foncier selon disponibilité et autorisation de publicité, prix du terrain hors frais de notaire et d’hypothèque.
Prix maison : hors papiers peints, peintures, revêtements de sol dans les chambres, cuisines, meubles vasques, et faïences (modifiable sans préavis, prix variables suivant les prestations souhaitées) hors frais d’hypothèque.        
 
            
 
                                        



