Située à 25 min de Rennes, sur l'Axe Rennes-Nantes, Pléchâtel dispose de nombreuses commodités (bars, épicerie, boulangerie et pharmacie) et services (école maternelle et primaire, bibliothèque, ludothèque, salle de sports,...).
Dans cette commune dynamique, nous vous proposons une maison de 112m² sur un terrain exposé Sud de 385m².
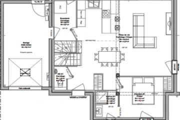
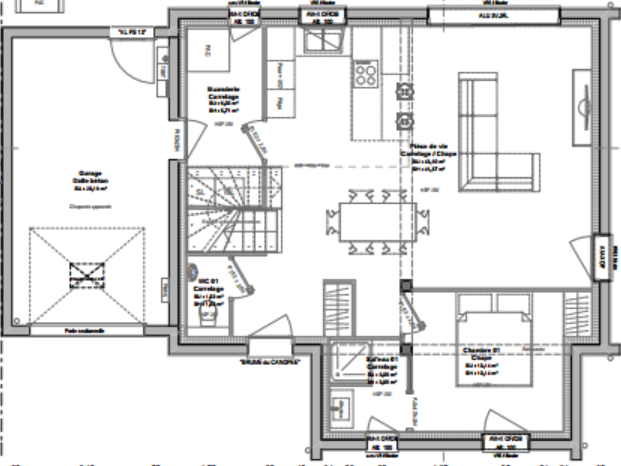
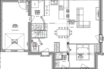
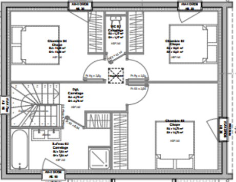
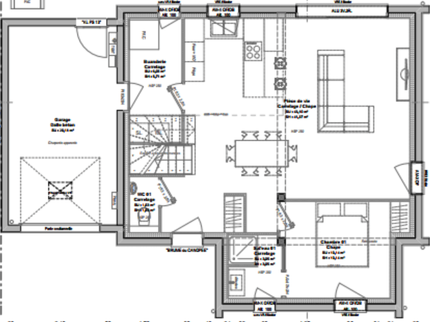
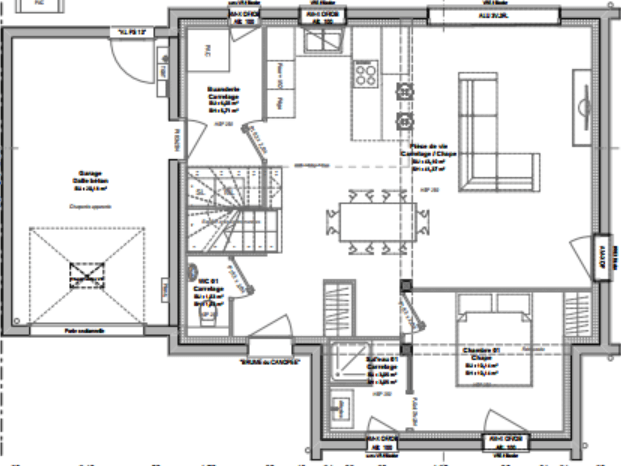
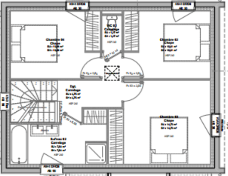
La maison se compose :
- au rez-de-chaussée : une grande pièce de vie de plus de 40m² avec cuisine ouverte, une buanderie, une chambre avec salle d'eau, WC séparés,
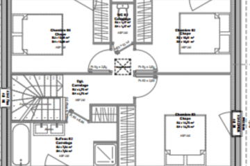
- à l'étage : 3 chambres, une salle de bains et WC séparés.
Garage compris.
NON MANDATÉ POUR LA VENTE DES TERRAINS
Maisons CREATION Rennes n’est pas chargé de réaliser la vente des terrains à bâtir mentionnés dans ces annonces.
Maisons CREATION Rennes agit seulement en qualité de constructeur.
Informations complémentaires
| Chambre(s) : 4 | Salle(s) de bain : 2 | Surface habitable : 112 m² |
| Surface terrain : 385 m² | Surface annexe : 41 m² | Garage(s) : 1 |
| Prix : 279 750 € |
Géolocalisation du bien
*Terrain proposé et vendu par notre partenaire foncier selon disponibilité et autorisation de publicité, prix du terrain hors frais de notaire et d’hypothèque.
Prix maison : hors papiers peints, peintures, revêtements de sol dans les chambres, cuisines, meubles vasques, et faïences (modifiable sans préavis, prix variables suivant les prestations souhaitées) hors frais d’hypothèque.





