MAISONS CRÉATION vous propose un projet de construction sur mesure situé à Orgères, au cœur de la ZAC Les Prairies d'Orgères, accessible grâce au dispositif BRS de Rennes Métropole.
Le projet est proposé sur un terrain de 213 m², exposé SUD, au prix attractif de 40 000 €.
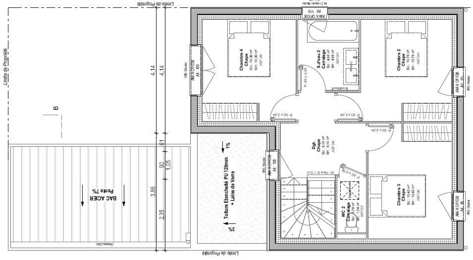
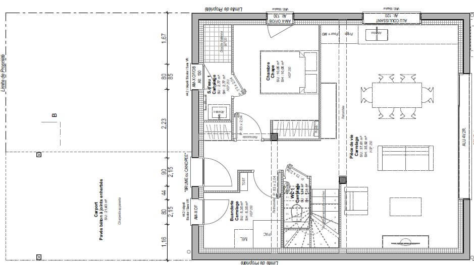
Maison 100 m² – 4 chambres – 2 salles d’eau – 2 stationnements
Les atouts du projet
- Proximité centre bourg et commerces
- Deux places de stationnement à l’avant
- Possibilité d’ajouter un carport
- Un abri de jardin de 8 m²
Prix maison ( hors sols et frais annexes)
* Le Bail Réel Solidaire (BRS) est un dispositif d’accession à la propriété permettant de dissocier le terrain du logement. Le ménage devient propriétaire du logement, tandis que le terrain reste la propriété de l’Organisme Foncier Solidaire Rennes Métropole (FSRM).
Informations complémentaires
| Chambre(s) : 4 | Salle(s) de bain : 2 | Surface habitable : 100 m² |
| Surface terrain : 213 m² | Surface annexe : 36 m² | Garage(s) : 0 |
| Prix : 257 000 € |
Géolocalisation du bien
*Terrain proposé et vendu par notre partenaire foncier selon disponibilité et autorisation de publicité, prix du terrain hors frais de notaire et d’hypothèque.
Prix maison : hors papiers peints, peintures, revêtements de sol dans les chambres, cuisines, meubles vasques, et faïences (modifiable sans préavis, prix variables suivant les prestations souhaitées) hors frais d’hypothèque.




