MAISONS CRÉATION vous propose un projet de construction situé à Montauban-de-Bretagne, à proximité de l’axe Rennes – Saint-Brieuc, dans un secteur recherché.
Le projet est implanté sur un terrain de 340 m², offrant un jardin spacieux et une belle luminosité, grâce à de grandes ouvertures.
La maison bénéficie d’une couverture en ardoise et de volumes bien pensés, y compris à l’étage avec des plafonds non mansardés, facilitant l’aménagement.
Maison familiale – 100 m² – 4 chambres – Garage
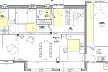
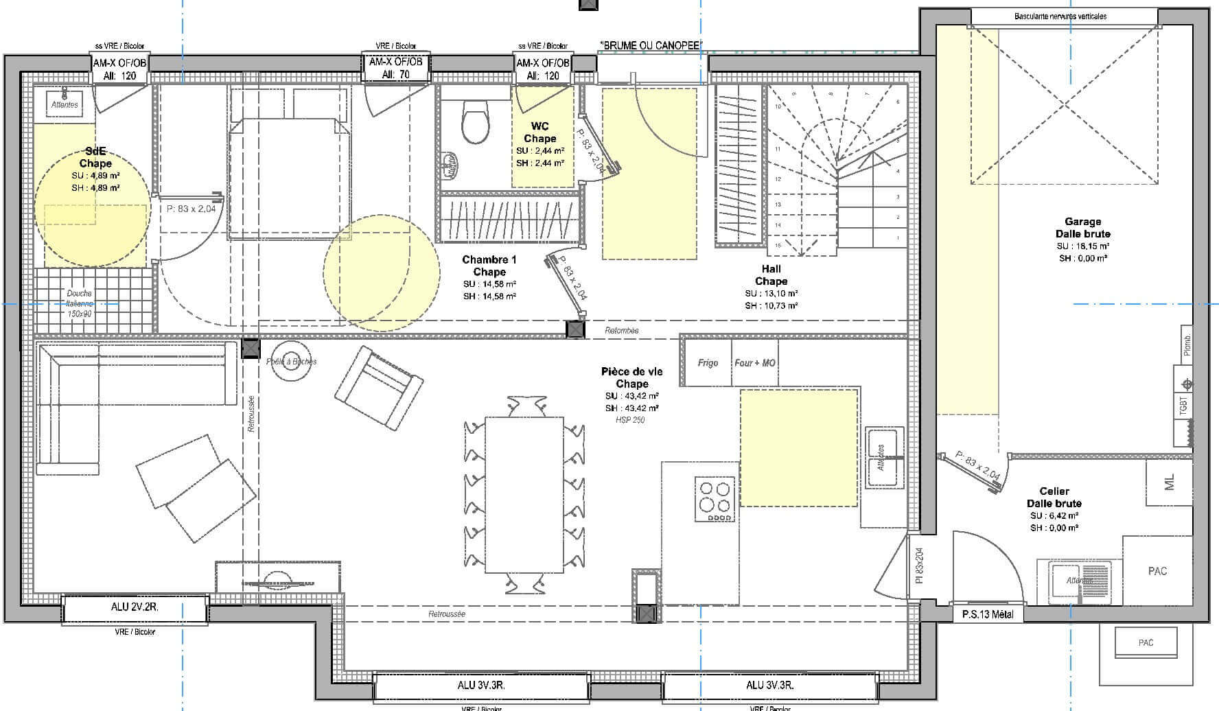
Cet exemple de maison se compose :
Au rez-de-chaussée :
- Une entrée
- Une cuisine ouverte
- Un salon / salle à manger de 43 m²
- Une chambre parentale avec salle d’eau et placard intégré
- Des WC séparés
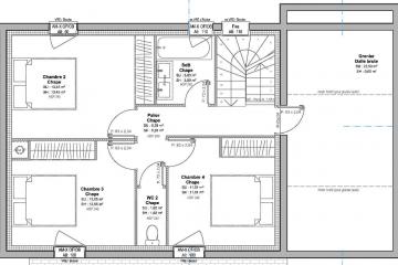
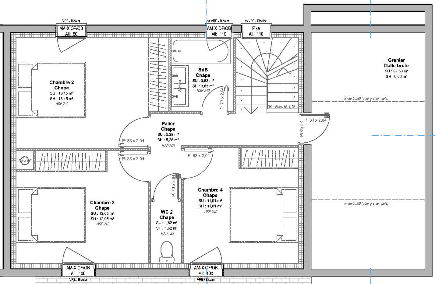
À l’étage :
- 3 chambres avec placards intégrés
- Une salle de bains
- Des WC séparés
- Des volumes non mansardés, facilitant l’aménagement
Annexes
- Un garage attenant
Pour plus de renseignements, contactez notre équipe commerciale MAISONS CRÉATION : 02 99 05 36 46
Informations complémentaires
| Chambre(s) : 4 | Salle(s) de bain : 2 | Surface habitable : 123 m² |
| Surface terrain : 340 m² | Surface annexe : 43 m² | Garage(s) : 1 |
| Prix : 334 450 € |
Géolocalisation du bien
*Terrain proposé et vendu par notre partenaire foncier selon disponibilité et autorisation de publicité, prix du terrain hors frais de notaire et d’hypothèque.
Prix maison : hors papiers peints, peintures, revêtements de sol dans les chambres, cuisines, meubles vasques, et faïences (modifiable sans préavis, prix variables suivant les prestations souhaitées) hors frais d’hypothèque.




