Rare à Laillé !
À proximité des accès à la route de Nantes, dans le secteur prisé de Bout de Lande, ce joli projet contemporain bénéficie d'une belle luminosité et d'une parcelle de 483m² donnant sur la campagne et la forêt.
Les amoureux de la nature, des balades en forêt et autres activités d'extérieurs seront comblés par l'environnement et la proximité efficace des accès à Rennes (10min si tout va bien :-) ).
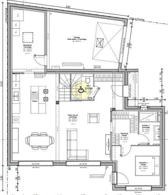
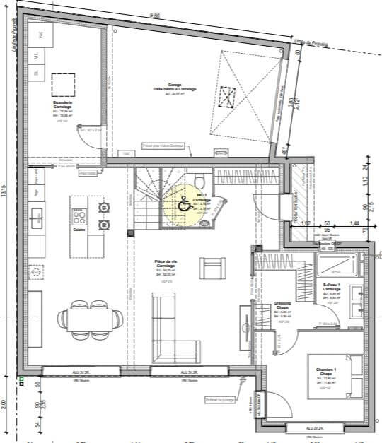
Concernant la maison elle se compose d'une belle pièce de vie donnant sur le jardin, une suite parentale avec dressing et salle d'eau, buanderie/arrière-cuisine, WC avec lave mains et une entrée avec placard.
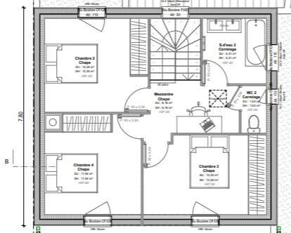
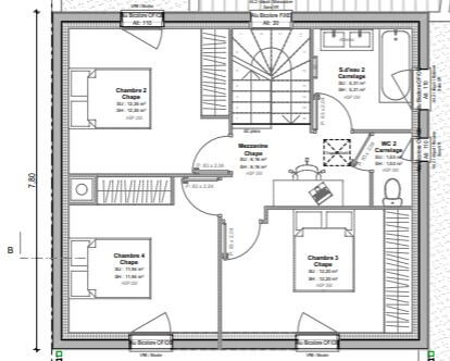
A l'étage, un palier avec l'espace pour un bureau, 3 belles chambres, une salle de bains et un WC.
L'ensemble fait 140m² habitable + un garge de 26 m².
Votre projet Maison + Terrain à partir de 415000€ (Hors frais)
NON MANDATÉ POUR LA VENTE DES TERRAINS
Maisons CREATION Rennes n’est pas chargé de réaliser la vente des terrains à bâtir mentionnés dans ces annonces.
Maisons CREATION Rennes agit seulement en qualité de constructeur.
Informations complémentaires
| Chambre(s) : 0 | Salle(s) de bain : N.C. | Surface habitable : 140 m² | 
| Surface terrain : 483 m² | Surface annexe : 52 m² | Garage(s) : 0 | 
| Prix : 415 000 € | 
Géolocalisation du bien
            *Terrain proposé et vendu par notre partenaire foncier selon disponibilité et autorisation de publicité, prix du terrain hors frais de notaire et d’hypothèque.
Prix maison : hors papiers peints, peintures, revêtements de sol dans les chambres, cuisines, meubles vasques, et faïences (modifiable sans préavis, prix variables suivant les prestations souhaitées) hors frais d’hypothèque.        
 
            
 
                                        



