MAISONS CRÉATION vous propose un projet de construction situé à Guichen, à proximité du Boël, de Bruz et de la zone commerciale de Vert Buisson, au cœur d’un environnement arboré.
Le projet est implanté sur un terrain de 314 m², orienté SUD-OUEST, offrant une belle luminosité et un jardin agréable.
Environnement campagne, proche d’un parc, tout en restant à proximité des transports et des axes d’accès vers Rennes.
Maison familiale – 100 m² – 4 chambres – Garage
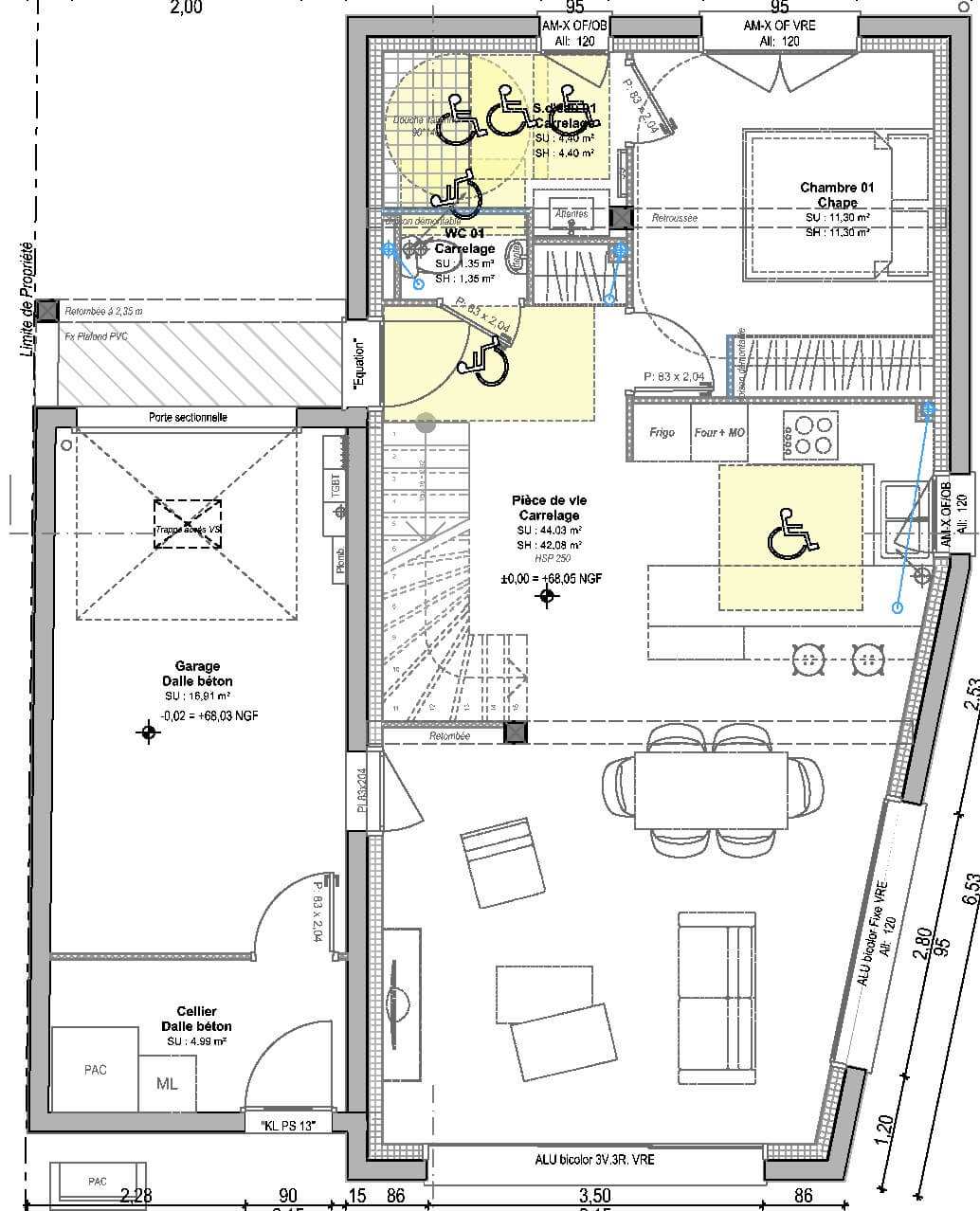
Cet exemple de maison, composée de 5 pièces et développant 100 m² habitables, se compose :
Au rez-de-chaussée :
- Une entrée
- Une cuisine ouverte
- Un salon / séjour de 44 m²
- Une chambre parentale avec salle d’eau et placard
- Des WC séparés
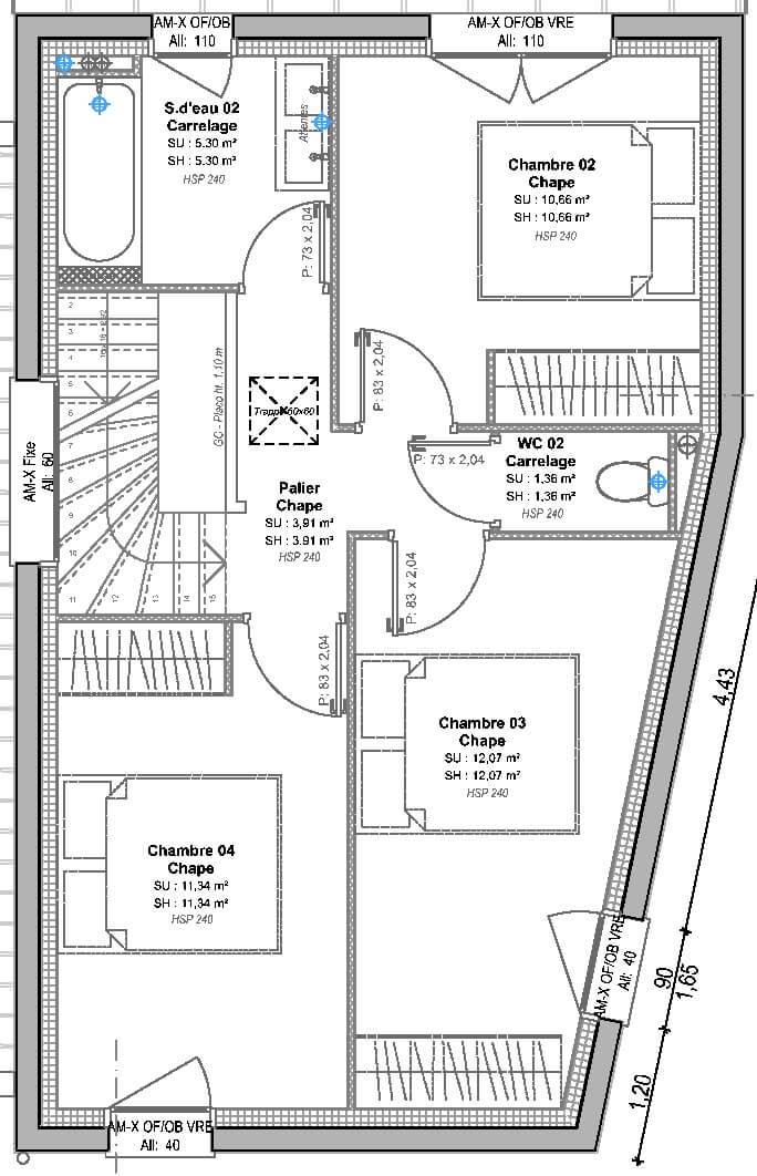
À l’étage :
- 3 chambres avec placards
- Une salle de bains
- Des WC séparés
Annexes
- Un grand garage, permettant d’accueillir une voiture familiale
Pour plus de renseignements, contactez notre équipe commerciale MAISONS CRÉATION : 02 99 05 36 46
Informations complémentaires
| Chambre(s) : 4 | Salle(s) de bain : 2 | Surface habitable : 100 m² |
| Surface terrain : 314 m² | Surface annexe : 44 m² | Garage(s) : 1 |
| Prix : 261 230 € |
Géolocalisation du bien
*Terrain proposé et vendu par notre partenaire foncier selon disponibilité et autorisation de publicité, prix du terrain hors frais de notaire et d’hypothèque.
Prix maison : hors papiers peints, peintures, revêtements de sol dans les chambres, cuisines, meubles vasques, et faïences (modifiable sans préavis, prix variables suivant les prestations souhaitées) hors frais d’hypothèque.





