MAISONS CRÉATION vous propose, en exclusivité à Gévezé, un projet de construction entièrement personnalisable, situé à proximité des transports et des commerces, au sein d’un petit lotissement, dans un environnement verdoyant.
Le projet est implanté sur un terrain de 354 m², offrant une belle luminosité et un jardin agréable.
Maison contemporaine – 4 chambres – Garage
Cet exemple de maison contemporaine se compose :
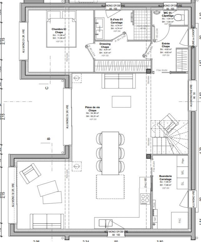
Au rez-de-chaussée :
- Une entrée
- Un spacieux salon / séjour
- Une cuisine ouverte
- Une chambre parentale de 20 m² avec salle d’eau et dressing
- Des WC séparés
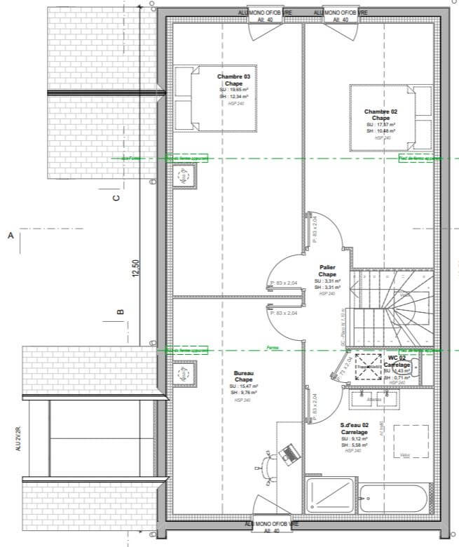
À l’étage :
- 3 chambres avec placards
- Une salle de bains avec baignoire et douche
- Des WC séparés
Annexes
- Un garage
Projet entièrement personnalisable : agencement, surfaces, prestations et finitions selon vos envies et votre budget.
Pour plus de renseignements, contactez notre équipe commerciale MAISONS CRÉATION : 02 99 05 36 46
Informations complémentaires
| Chambre(s) : 4 | Salle(s) de bain : 2 | Surface habitable : 130 m² |
| Surface terrain : 354 m² | Surface annexe : 52 m² | Garage(s) : 1 |
| Prix : 387 900 € |
Géolocalisation du bien
*Terrain proposé et vendu par notre partenaire foncier selon disponibilité et autorisation de publicité, prix du terrain hors frais de notaire et d’hypothèque.
Prix maison : hors papiers peints, peintures, revêtements de sol dans les chambres, cuisines, meubles vasques, et faïences (modifiable sans préavis, prix variables suivant les prestations souhaitées) hors frais d’hypothèque.





