Découvrez cette superbe maison située à Bréal-sous-Montfort, dans un emplacement idéal proche immédiatement du bourg et de ses nombreux commerces.
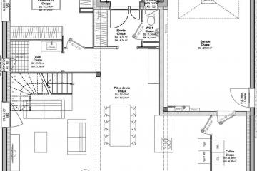
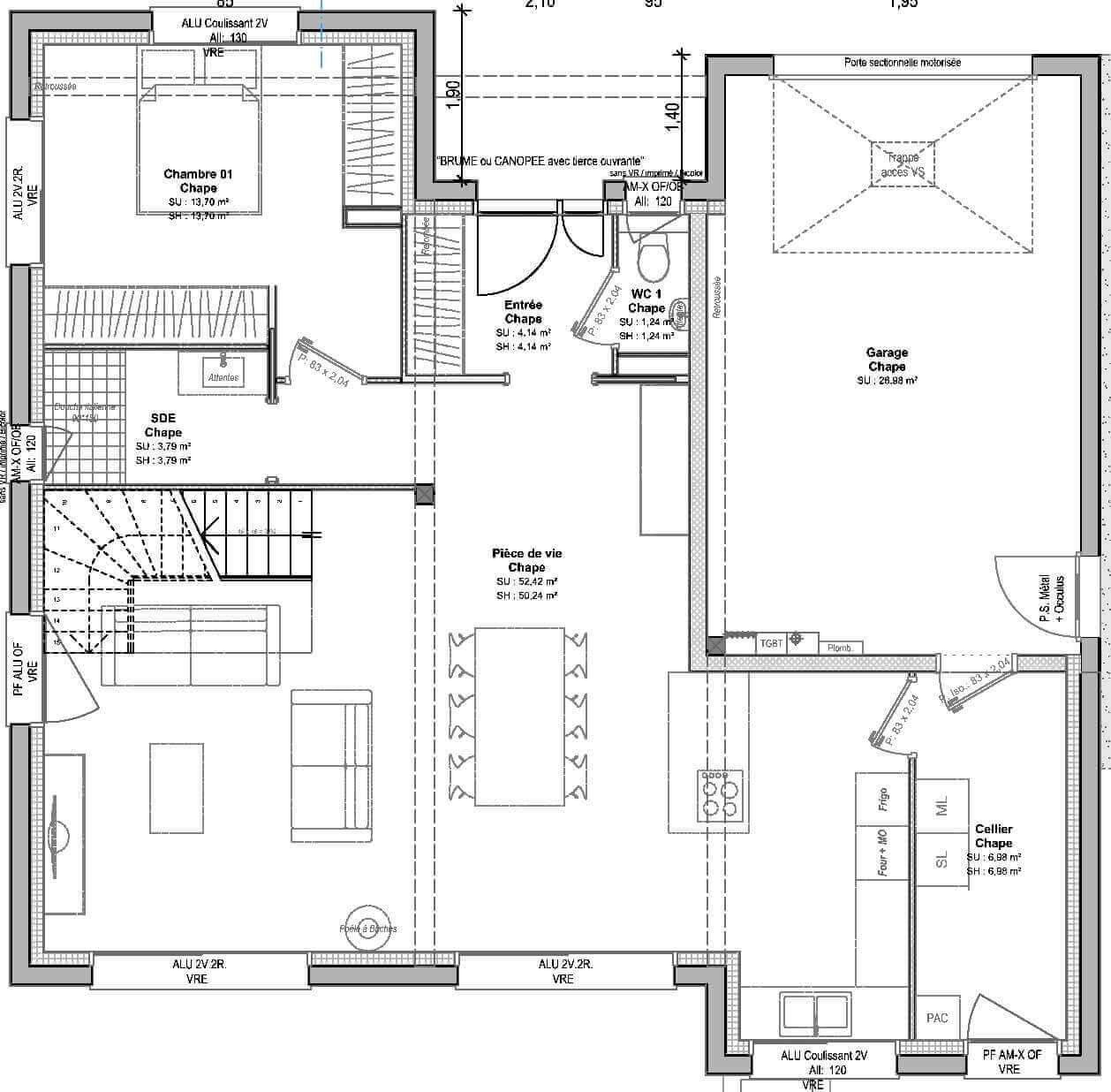
Elle bénéficie d'une belle luminosité grâce à sa parcelle de 371m² orientée Sud-Ouest en lisière de lotissement. Ce projet personnalisable à 100% propose une surface habitable de 100m² comprenant : au rez-de-chaussée, un sas d'entrée avec placard donnant accès aux WC, une belle pièce de vie de 50m² exposée Sud-Ouest sans vis-à-vis, un cellier/buanderie avec accès au garage et au jardin et une suite parentale comprenant une chambre de 14m² avec de grands placards et une salle d'eau.
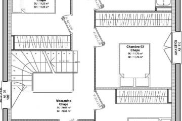
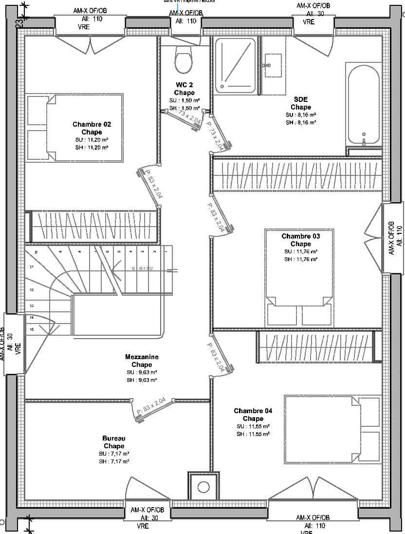
A l'étage, vous bénéficiez d'un beau palier avec vue sur le séjour et la lumière naturelle, 3 chambres, 1 bureau, une salle de bains avec baignoire et douche et enfin d'un WC séparé.
Ce projet Maison + Terrain est disponible à partir de 302000€ (Hors frais).
Informations complémentaires
| Chambre(s) : 4 | Salle(s) de bain : 2 | Surface habitable : 100 m² |
| Surface terrain : 371 m² | Surface annexe : 50 m² | Garage(s) : 1 |
| Prix : 302 000 € |
Géolocalisation du bien
*Terrain proposé et vendu par notre partenaire foncier selon disponibilité et autorisation de publicité, prix du terrain hors frais de notaire et d’hypothèque.
Prix maison : hors papiers peints, peintures, revêtements de sol dans les chambres, cuisines, meubles vasques, et faïences (modifiable sans préavis, prix variables suivant les prestations souhaitées) hors frais d’hypothèque.





