MAISONS CRÉATION vous propose, en exclusivité à Gévezé, un projet de construction entièrement personnalisable, situé à proximité des transports et des commerces, au sein d’un petit lotissement, dans un environnement verdoyant.
Le projet est implanté sur un terrain de 415 m², offrant une belle luminosité et un jardin agréable.
Maison contemporaine – 5 chambres + bureau – Garage
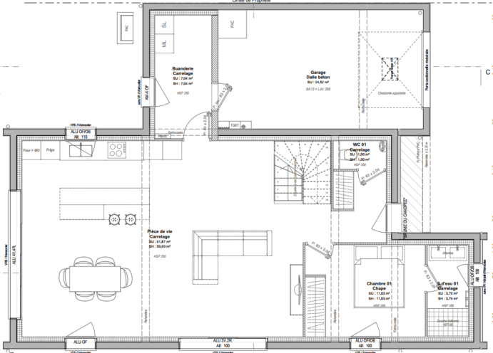
Cet exemple de maison contemporaine se compose :
Au rez-de-chaussée :
- Une entrée
- Un spacieux salon / séjour
- Une cuisine ouverte
- Un cellier / buanderie
- Une chambre avec salle d’eau
- Des WC séparés
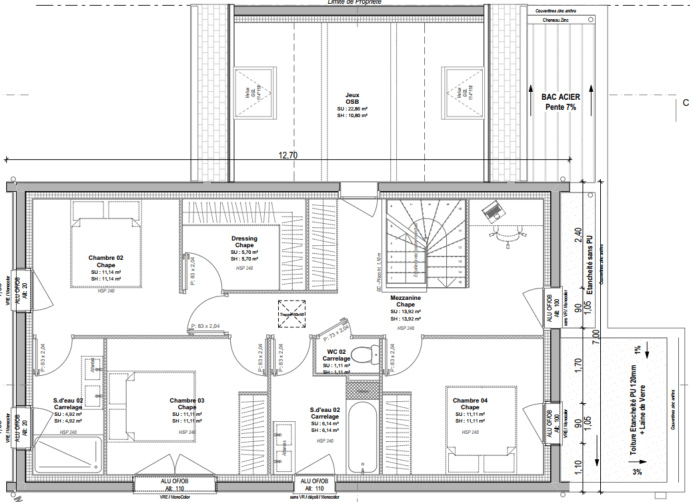
À l’étage :
- Une suite parentale de 21 m²
- 2 chambres avec placards
- Une chambre / salle de jeux
- Une salle de bains
- Des WC séparés
- Un bureau situé dans le dégagement
Annexes
- Un garage
Pour plus de renseignements, contactez notre équipe commerciale MAISONS CRÉATION : 02 99 05 36 46
Informations complémentaires
| Chambre(s) : 5 | Salle(s) de bain : 3 | Surface habitable : 100 m² |
| Surface terrain : 415 m² | Surface annexe : 60 m² | Garage(s) : 1 |
| Prix : 347 900 € |
Géolocalisation du bien
*Terrain proposé et vendu par notre partenaire foncier selon disponibilité et autorisation de publicité, prix du terrain hors frais de notaire et d’hypothèque.
Prix maison : hors papiers peints, peintures, revêtements de sol dans les chambres, cuisines, meubles vasques, et faïences (modifiable sans préavis, prix variables suivant les prestations souhaitées) hors frais d’hypothèque.





