MAISONS CRÉATION vous propose un projet de construction situé à Bain-de-Bretagne, dans le quartier de La Ferronais, à proximité de l’axe Rennes – Nantes, des écoles et des transports.
Le projet est implanté sur un terrain de 537 m², orienté plein SUD, offrant une belle luminosité et un jardin spacieux.
La maison se situe à environ 5 minutes en voiture du centre-ville.
Maison contemporaine – 100 m² – 4 chambres – Garage
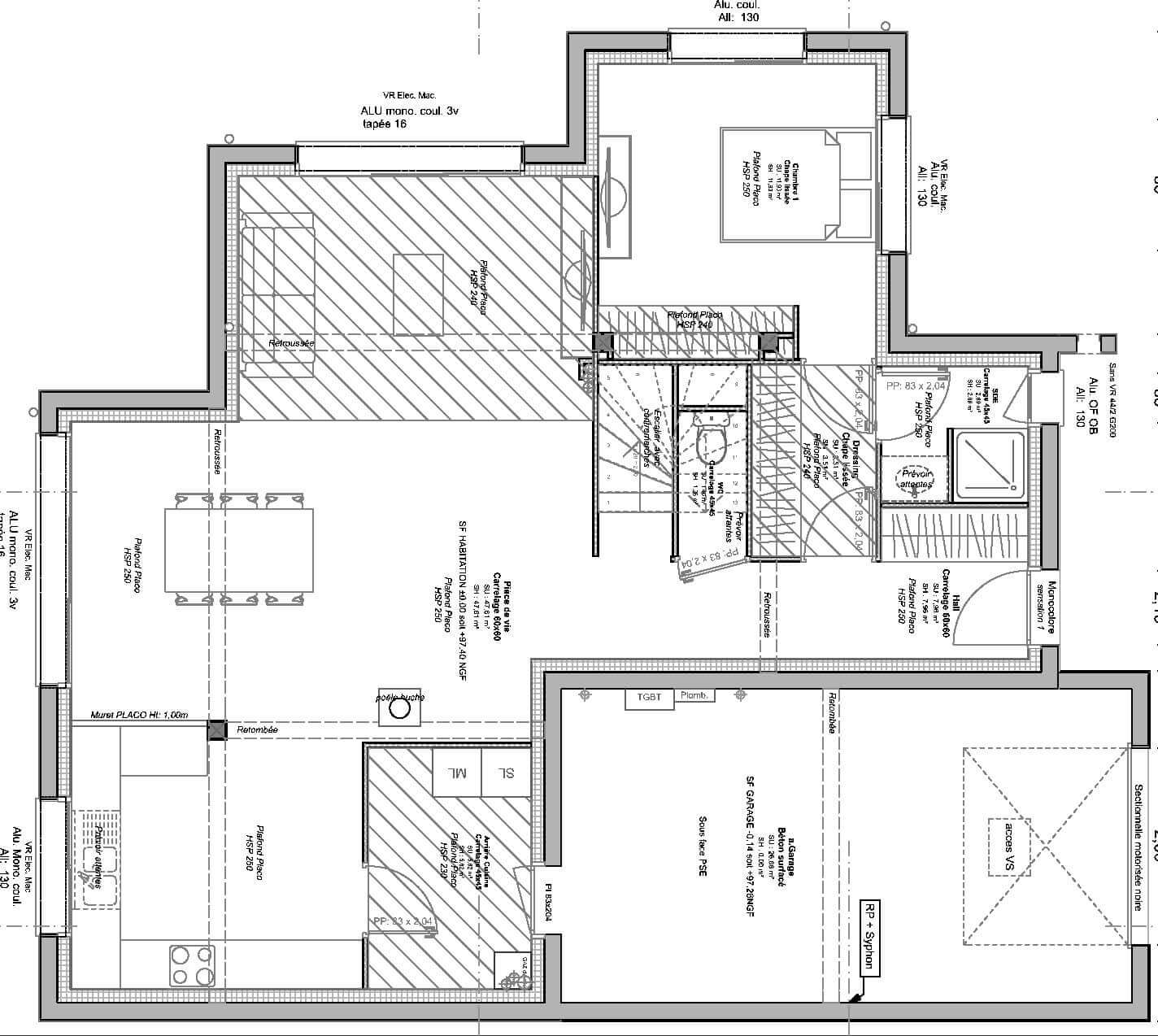
Cet exemple de maison contemporaine, composée de 6 pièces et développant 100 m² habitables, se compose :
Au rez-de-chaussée :
- Une entrée
- Une cuisine ouverte
- Un salon / séjour de 54 m²
- Une chambre parentale de 15 m² avec salle d’eau et dressing
- Des WC séparés
À l’étage :
- 3 chambres avec placards
- Une salle de bains
- Des WC séparés
Annexes
- Un garage attenant
Pour plus de renseignements, contactez notre équipe commerciale MAISONS CRÉATION : 02 99 05 36 46
Informations complémentaires
| Chambre(s) : 4 | Salle(s) de bain : 2 | Surface habitable : 100 m² |
| Surface terrain : 537 m² | Surface annexe : 54 m² | Garage(s) : 0 |
| Prix : 265 000 € |
Géolocalisation du bien
*Terrain proposé et vendu par notre partenaire foncier selon disponibilité et autorisation de publicité, prix du terrain hors frais de notaire et d’hypothèque.
Prix maison : hors papiers peints, peintures, revêtements de sol dans les chambres, cuisines, meubles vasques, et faïences (modifiable sans préavis, prix variables suivant les prestations souhaitées) hors frais d’hypothèque.



