MAISONS CRÉATION vous propose un projet de construction bénéficiant d’une situation idéale à Crevin, à proximité immédiate du centre-ville, où se trouvent tous les commerces et services du quotidien.
Le projet est implanté sur un terrain de 336 m², orienté OUEST, offrant une belle luminosité et un jardin agréable. La maison se situe à environ 8 minutes à pied du centre et 3 minutes en voiture, dans un secteur recherché.
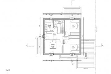
Maison contemporaine à étage – 117 m² – 4 chambres – Garage
Cet exemple de maison familiale, composée de 6 pièces et développant 117 m² habitables, se compose :
Au rez-de-chaussée :
- Une entrée avec placard
- Une cuisine ouverte
- Un salon / séjour de 47 m²
- Une chambre parentale avec salle d’eau et placard
- Des WC séparés
À l’étage :
- 3 chambres spacieuses, dont 2 exposées EST (soleil levant)
- Une salle de bains
- Des WC séparés
Annexes
- Un garage simple
Pour plus de renseignements, contactez notre équipe commerciale MAISONS CRÉATION : 02 99 05 36 46
Informations complémentaires
| Chambre(s) : 4 | Salle(s) de bain : 2 | Surface habitable : 117 m² |
| Surface terrain : 336 m² | Surface annexe : 47 m² | Garage(s) : 1 |
| Prix : 297 000 € |
Géolocalisation du bien
*Terrain proposé et vendu par notre partenaire foncier selon disponibilité et autorisation de publicité, prix du terrain hors frais de notaire et d’hypothèque.
Prix maison : hors papiers peints, peintures, revêtements de sol dans les chambres, cuisines, meubles vasques, et faïences (modifiable sans préavis, prix variables suivant les prestations souhaitées) hors frais d’hypothèque.





