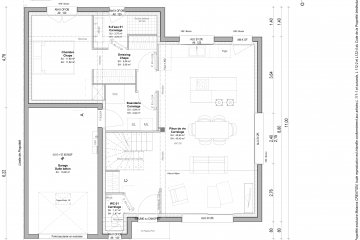
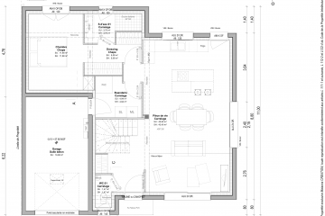
Situé à Baulon, à 23km au Sud Rennes, dans une commune disposant des premiers services et commerces, cette maison de 113m² dispose :
- au rez-de-chaussée : une pièce de vie de 44m², une suite parentale avec salle d'eau et dressing, des WC séparés, une buanderie et un garage
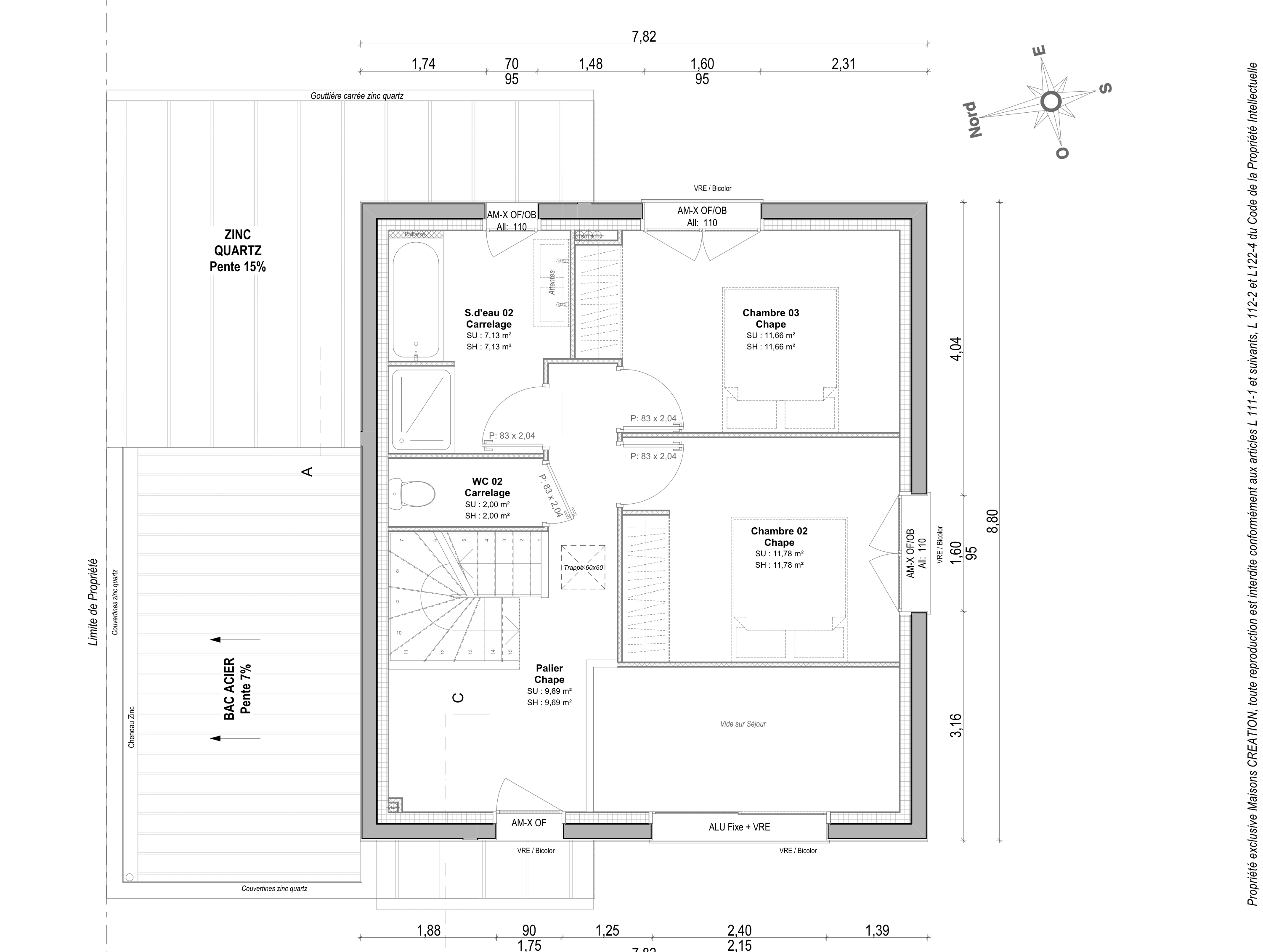
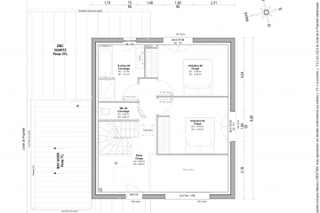
- à l'étage : 2 chambres, une salle de bains, des WC séparés et une mezzanine (possibilité de cloisonner ce dernier espace pour en faire un bureau fermé).
Le tout un terrain de 303m².
Projet entièrement personnalisable
Informations complémentaires
| Chambre(s) : 3 | Salle(s) de bain : 2 | Surface habitable : 113 m² |
| Surface terrain : 303 m² | Surface annexe : 44 m² | Garage(s) : 1 |
| Prix : 301 000 € |
Géolocalisation du bien
*Terrain proposé et vendu par notre partenaire foncier selon disponibilité et autorisation de publicité, prix du terrain hors frais de notaire et d’hypothèque.
Prix maison : hors papiers peints, peintures, revêtements de sol dans les chambres, cuisines, meubles vasques, et faïences (modifiable sans préavis, prix variables suivant les prestations souhaitées) hors frais d’hypothèque.





