A découvrir à Val-d'Izé !
Située à Val-d'Izé, à proximité de Liffré et Vitré, cette maison étage en ardoise bénéficie d'une belle luminosité et d'un jardin de 525m²
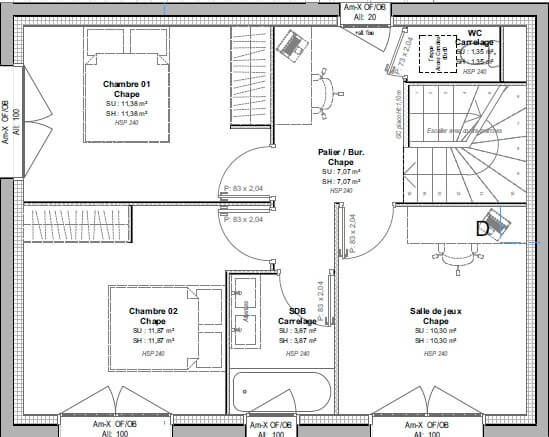
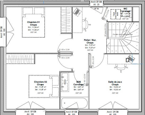
A proximité des écoles, près des commodités et services, cette maison de 107m² comprend :
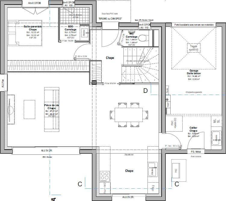
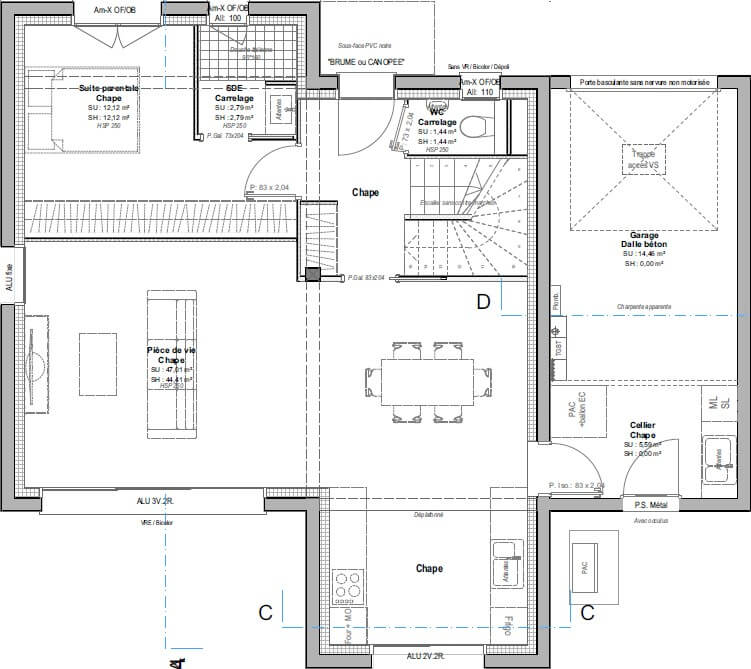
- au rez-de-chaussée : une cuisine ouverte, un Salon / Séjour de 47m², un cellier, des WC séparés, une chambre parentale de 12m² avec une salle d'eau,
- à l'étage, vous pourrez profiter, de WC séparés, de 2 chambres de plus de 11m², d'une salle de jeux.
Cette maison dispose également d'un garage attenant.
Votre projet Maison + Terrain à partir de 283000€ (Hors frais)
NON MANDATÉ POUR LA VENTE DES TERRAINS
Maisons CREATION Rennes n’est pas chargé de réaliser la vente des terrains à bâtir mentionnés dans ces annonces.
Maisons CREATION Rennes agit seulement en qualité de constructeur.
Informations complémentaires
| Chambre(s) : 4 | Salle(s) de bain : 2 | Surface habitable : 107 m² | 
| Surface terrain : 525 m² | Surface annexe : 47 m² | Garage(s) : 1 | 
| Prix : 284 000 € | 
Géolocalisation du bien
            *Terrain proposé et vendu par notre partenaire foncier selon disponibilité et autorisation de publicité, prix du terrain hors frais de notaire et d’hypothèque.
Prix maison : hors papiers peints, peintures, revêtements de sol dans les chambres, cuisines, meubles vasques, et faïences (modifiable sans préavis, prix variables suivant les prestations souhaitées) hors frais d’hypothèque.        
            
                                        


