Idéalement située au cœur de SENS-DE-BRETAGNE, cette maison est nichée dans le centre bourg, offrant ainsi un accès pratique à toutes les commodités de la commune.
MAISONS CREATION vous propose un projet de construction sur mesure. Voici une suggestion de maison optimisée de 91 m² :
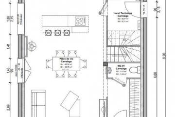
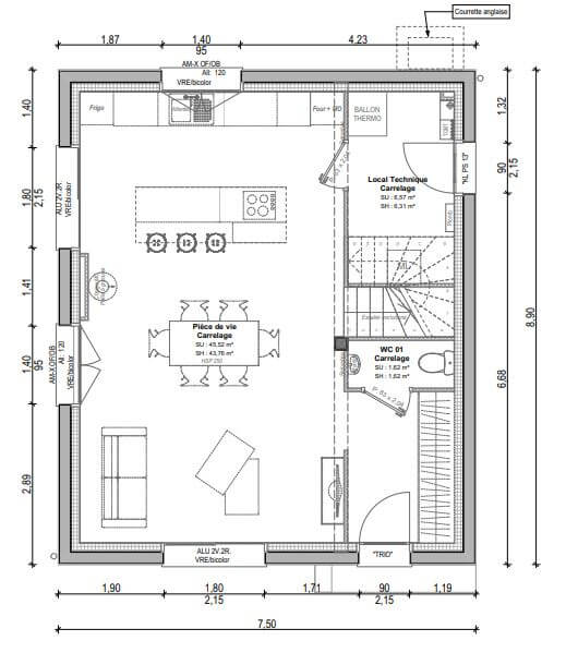
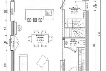
Au rez-de-chaussée, l'aménagement comprend une entrée avec placard, une spacieuse pièce de vie de 43 m² avec cuisine ouverte, un local technique de 6 m² et un WC séparé.
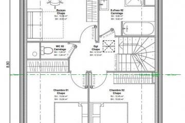
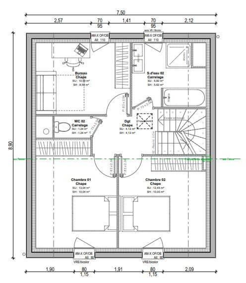
À l'étage, vous découvrirez 3 chambres avec placards intégrés, une salle de bain/douche et un WC séparé.
Ce bien est également doté d'un garage pour votre confort.
Pour plus de détails, n'hésitez pas à contacter notre équipe commerciale chez MAISONS CREATION au 02 99 05 36 46.
Informations complémentaires
| Chambre(s) : 3 | Salle(s) de bain : 1 | Surface habitable : 91 m² |
| Surface terrain : 361 m² | Surface annexe : 43 m² | Garage(s) : 1 |
| Prix : 233 590 € |
Géolocalisation du bien
*Terrain proposé et vendu par notre partenaire foncier selon disponibilité et autorisation de publicité, prix du terrain hors frais de notaire et d’hypothèque.
Prix maison : hors papiers peints, peintures, revêtements de sol dans les chambres, cuisines, meubles vasques, et faïences (modifiable sans préavis, prix variables suivant les prestations souhaitées) hors frais d’hypothèque.






