MAISONS CRÉATION vous propose un projet de construction sur mesure situé à Sens-de-Bretagne, en plein centre bourg, avec un accès pratique à l’ensemble des commodités de la commune.
Maison 91 m² – 3 chambres – Garage
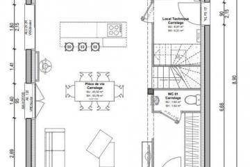
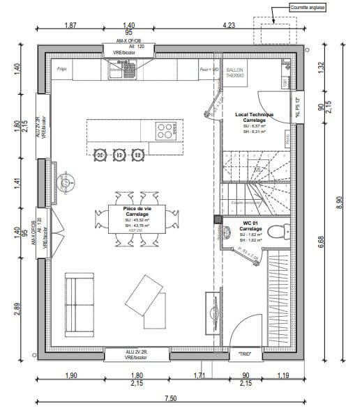
Cet exemple de maison optimisée de 91 m² habitables se compose :
Au rez-de-chaussée :
- Une entrée avec placard
- Une pièce de vie de 43 m² avec cuisine ouverte
- Un local technique de 6 m²
- Des WC séparés
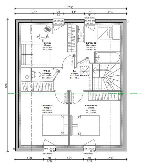
À l’étage :
- 3 chambres avec placards intégrés
- Une salle de bain / douche
- Un WC séparé
Annexes
- Un garage
Pour plus de détails, contactez notre équipe commerciale MAISONS CRÉATION : 02 99 05 36 46
Informations complémentaires
| Chambre(s) : 3 | Salle(s) de bain : 1 | Surface habitable : 91 m² |
| Surface terrain : 361 m² | Surface annexe : 43 m² | Garage(s) : 1 |
| Prix : 233 590 € |
Géolocalisation du bien
*Terrain proposé et vendu par notre partenaire foncier selon disponibilité et autorisation de publicité, prix du terrain hors frais de notaire et d’hypothèque.
Prix maison : hors papiers peints, peintures, revêtements de sol dans les chambres, cuisines, meubles vasques, et faïences (modifiable sans préavis, prix variables suivant les prestations souhaitées) hors frais d’hypothèque.





