ST Pierre de Plesguen commune de MESNIL ROC'H , dans un petit lotissement situé en centre bourg.
Proche des écoles, des commerces, du complexe sportif communal, de la gare routière le tout à moins de 20 minutes de St Malo et 30 minutes de Rennes, 15 minutes de de Combourg et Dinan.
Nous vous proposons de venir construire sur un terrain de 610 m2 une maison de 115 m² à personnaliser entièrement selon vos souhaits.
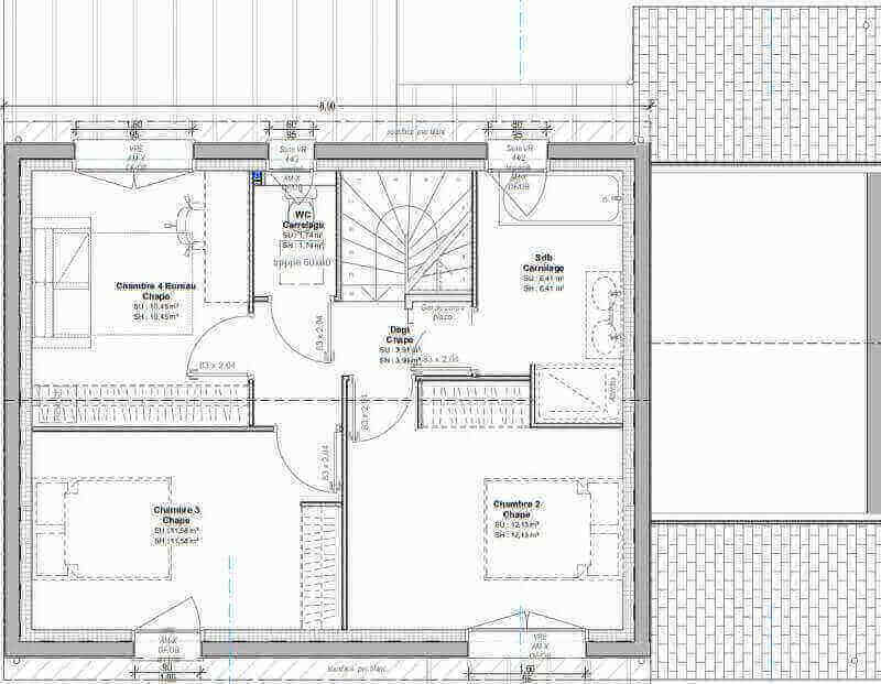
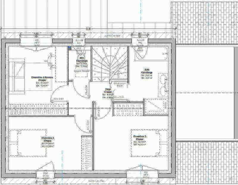
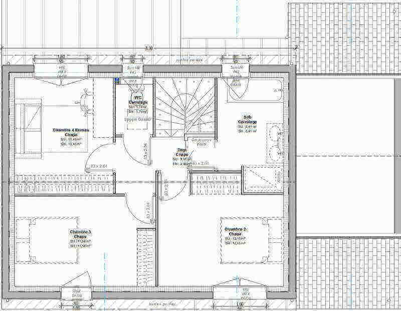
Ici vous disposez d'un bel espace de vie au rez-de-chaussée ainsi qu'une suite parentale. À l'étage, vous pourrez profiter de trois grandes chambres et d'une salle de bains commune.
Chez Maisons Creation, nous personnalisons intégralement tous nos projets en fonction de vos préférences, que ce soit au niveau de la conception intérieure et architecturale ou du niveau de prestations que vous souhaitez.
*Terrain proposé et vendu par notre partenaire foncier selon disponibilité et autorisation de publicité, prix du terrain hors frais de notaire et d’hypothèque.
Prix maison : hors papiers peints, peintures, revêtements de sol dans les chambres, cuisines, meubles vasques, et faïences (modifiable sans préavis, prix variables suivant les prestations souhaitées) hors frais d’hypothèque.
Informations complémentaires
| Chambre(s) : 4 | Salle(s) de bain : 2 | Surface habitable : 115 m² |
| Surface terrain : 610 m² | Surface annexe : 45 m² | Garage(s) : 1 |
| Prix : 311 500 € |
Géolocalisation du bien
*Terrain proposé et vendu par notre partenaire foncier selon disponibilité et autorisation de publicité, prix du terrain hors frais de notaire et d’hypothèque.
Prix maison : hors papiers peints, peintures, revêtements de sol dans les chambres, cuisines, meubles vasques, et faïences (modifiable sans préavis, prix variables suivant les prestations souhaitées) hors frais d’hypothèque.





