MAISONS CRÉATION vous propose un projet de construction RE2020 situé en plein bourg de Saint-Père Marc-en-Poulet, dans un cadre paisible et verdoyant, à proximité des grands axes.
Le projet est implanté sur un terrain de 354 m², comprenant 49 m² de stationnement déporté accolé à la parcelle, et bénéficiant d’une superbe vue dégagée sur la nature environnante.
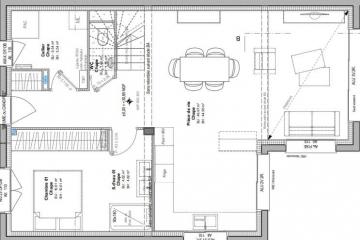
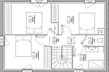
Cet exemple de maison RE2020 développe 119 m² habitables et se compose :
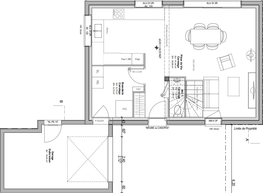
Au rez-de-chaussée :
- Un bel espace de vie lumineux, bénéficiant d’une double exposition
- Un accès à une grande terrasse exposée plein SUD
- Une chambre avec salle d’eau
- Une buanderie
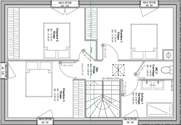
À l’étage :
- 3 chambres
- Une salle de bains
- Des WC séparés
Annexes et potentiel
- Possibilité de construction d’un garage de 24 m², offrant un espace de rangement complémentaire
Chez Maisons Création, tous nos projets sont entièrement personnalisables, tant au niveau de la conception intérieure et architecturale que du choix des prestations et finitions.
Projet incluant le prix du terrain, les garanties et assurances
Pour plus de renseignements et étudier votre projet, contactez notre équipe commerciale MAISONS CRÉATION : 02 99 05 36 46
Informations complémentaires
| Chambre(s) : 4 | Salle(s) de bain : 2 | Surface habitable : 119 m² |
| Surface terrain : 354 m² | Surface annexe : 45 m² | Garage(s) : 0 |
| Prix : 294 056 € |
Géolocalisation du bien
*Terrain proposé et vendu par notre partenaire foncier selon disponibilité et autorisation de publicité, prix du terrain hors frais de notaire et d’hypothèque.
Prix maison : hors papiers peints, peintures, revêtements de sol dans les chambres, cuisines, meubles vasques, et faïences (modifiable sans préavis, prix variables suivant les prestations souhaitées) hors frais d’hypothèque.







