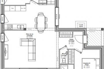
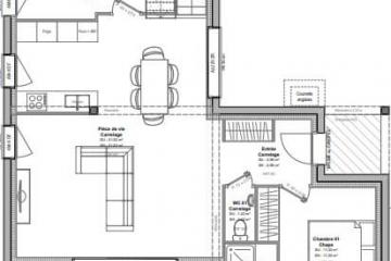
Sur terrain de 348 m² dans un cadre paisible et verdoyant, en plein bourg de Saint-Père Marc-en-Poulet et des grands axes, nous vous proposons une MAISON RE2020 à étage d'une surface de 16 m² disposant au rez-de-chaussée d'un très bel espace de vie très lumineux car bénéficiant d'une triple exposition.
De cet espace de vie vous profiterez de 2 possibilités de terrasse, dont une orienté plein SUD, et l'autre vous permettant de profiter pleinement de votre jardin privatif.
Pour votre rangement vous pourrez profiter d'une grande buanderie et une belle entrée avec rangement.
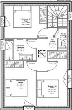
A l'étage on retrouve 3 belles chambres, une salle de bain et un WC séparé.
La parcelle présente la possibilité de construire un garage de 20m², qui viendra là-aussi vous faire gagner en rangement.
2 places de parking extérieures.
Chez Maisons Creation, tous nos projets sont intégralement personnalisés, tant au niveau de la conception intérieure et architecturale du projet, qu'à la définition du niveau de prestations que vous souhaitez.
Projet incluant prix du terrain, garanties et assurances incluses, hors frais annexes liés au terrain et aux finitions de la maison.
Informations complémentaires
| Chambre(s) : 4 | Salle(s) de bain : 2 | Surface habitable : 116 m² |
| Surface terrain : 348 m² | Surface annexe : 42 m² | Garage(s) : 1 |
| Prix : 327 055 € |
Géolocalisation du bien
*Terrain proposé et vendu par notre partenaire foncier selon disponibilité et autorisation de publicité, prix du terrain hors frais de notaire et d’hypothèque.
Prix maison : hors papiers peints, peintures, revêtements de sol dans les chambres, cuisines, meubles vasques, et faïences (modifiable sans préavis, prix variables suivant les prestations souhaitées) hors frais d’hypothèque.






