Située à Saint-Méen-le-Grand, à proximité de Montfort-sur-Meu et Bédée, proche de l'axe Rennes / Saint-Brieuc, cette maison à étage bénéficie d'une belle luminosité et d'un jardin de 399m²
A proximité des écoles, près des commodités et services, elle est composée de 5 pièces répartie sur 107m².
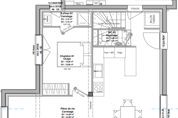
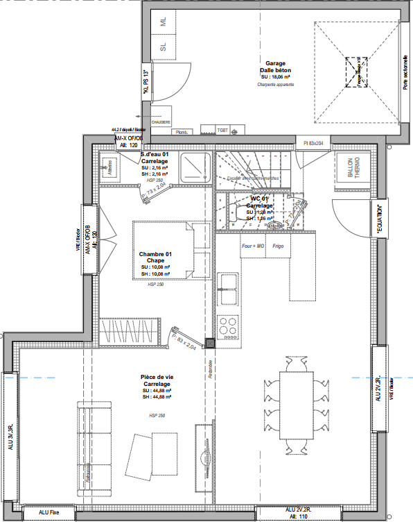
Cette maison comprend au rez-de-chaussée, une cuisine ouverte, un Salon / Séjour de 45m², des WC séparés, une chambre parentale de 12m² avec une salle d'eau,
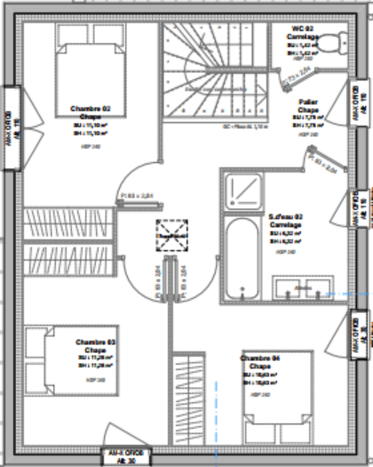
A l'étage, vous pourrez profiter, de 3 chambres, de WC séparés et d'une salle de bains.
Cette maison dispose également d'un garage attenant.
Votre projet Maison + Terrain à partir de 256000€ (Hors frais)
NON MANDATÉ POUR LA VENTE DES TERRAINS
Maisons CREATION Rennes n’est pas chargé de réaliser la vente des terrains à bâtir mentionnés dans ces annonces.
Maisons CREATION Rennes agit seulement en qualité de constructeur.
Informations complémentaires
| Chambre(s) : 4 | Salle(s) de bain : 2 | Surface habitable : 107 m² |
| Surface terrain : 399 m² | Surface annexe : 45 m² | Garage(s) : 1 |
| Prix : 256 000 € |
Géolocalisation du bien
*Terrain proposé et vendu par notre partenaire foncier selon disponibilité et autorisation de publicité, prix du terrain hors frais de notaire et d’hypothèque.
Prix maison : hors papiers peints, peintures, revêtements de sol dans les chambres, cuisines, meubles vasques, et faïences (modifiable sans préavis, prix variables suivant les prestations souhaitées) hors frais d’hypothèque.





