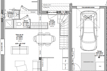
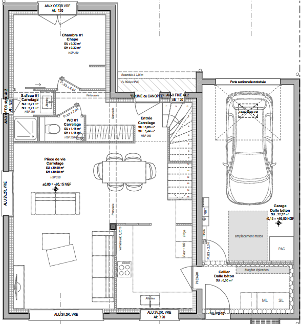
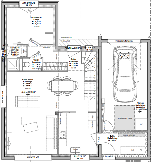
A Saint-Médard-sur-Ille, près de Saint-Aubin-d'Aubigné et à 25 min de Rennes, nous vous proposons une maison de 103m², sur un terrain de 350m².
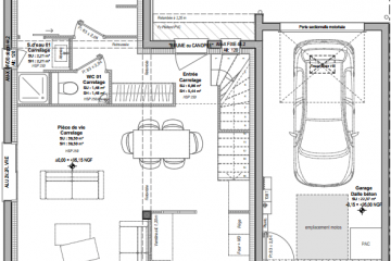
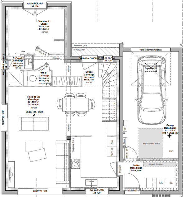
Composée au rez-de-chaussée d'une entrée, une chambre avec salle d'eau, une cuisine semi ouverte, une arrière-cuisine et des WC séparés.
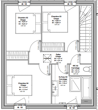
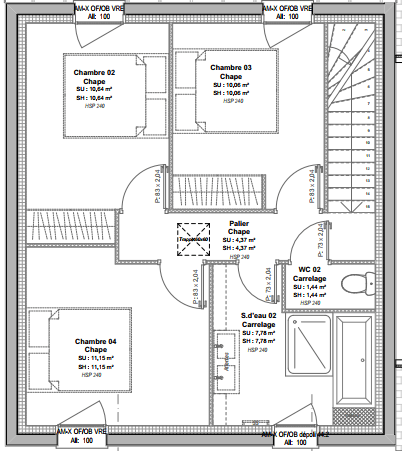
A l'étage, on trouve 3 chambres, une salle de bains avec baignoire et douche et WC séparés.
Garage attenant.
Informations complémentaires
| Chambre(s) : 4 | Salle(s) de bain : 2 | Surface habitable : 103 m² |
| Surface terrain : 350 m² | Surface annexe : 40 m² | Garage(s) : 1 |
| Prix : 287 350 € |
Géolocalisation du bien
*Terrain proposé et vendu par notre partenaire foncier selon disponibilité et autorisation de publicité, prix du terrain hors frais de notaire et d’hypothèque.
Prix maison : hors papiers peints, peintures, revêtements de sol dans les chambres, cuisines, meubles vasques, et faïences (modifiable sans préavis, prix variables suivant les prestations souhaitées) hors frais d’hypothèque.





