Exclusivité à Saint-Maugan!
Située à Saint-Maugan, à proximité de Iffendic, Montfort-sur-Meu, cette maison 4 pans ardoises dispose d'un jardin de 580m² et d'une orientation Ouest idéale.
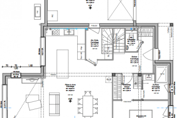
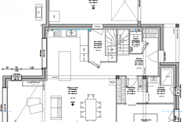
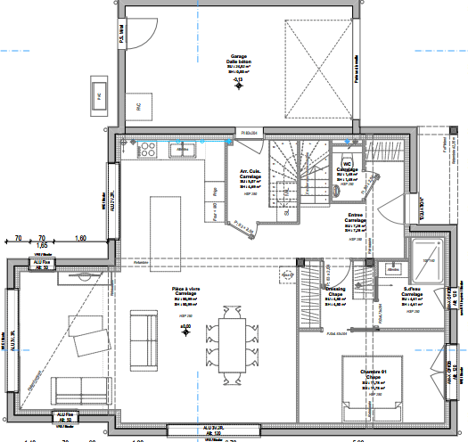
Cette maison de 140m² comprend :
* au rez-de-chaussée : une pièce de vie de 51m² avec cuisine ouverte, une arrière-cuisine, des WC séparés, une chambre parentale de 21m² avec salle d'eau et dressing,
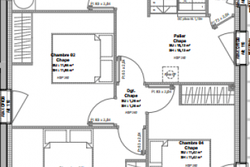
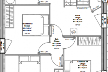
* à l'étage : 3 chambres, des WC séparés, une salle de bains (avec baignoire et douche) et un palier de 10m² (salle de jeux ou bureau).
Cette maison dispose également d'un garage attenant.
Votre projet Maison + Terrain à partir de 371000€ (Hors frais).
NON MANDATÉ POUR LA VENTE DES TERRAINS
Maisons CREATION Rennes n’est pas chargé de réaliser la vente des terrains à bâtir mentionnés dans ces annonces.
Maisons CREATION Rennes agit seulement en qualité de constructeur.
Informations complémentaires
| Chambre(s) : 4 | Salle(s) de bain : 2 | Surface habitable : 140 m² | 
| Surface terrain : 580 m² | Surface annexe : 51 m² | Garage(s) : 1 | 
| Prix : 371 000 € | 
Géolocalisation du bien
            *Terrain proposé et vendu par notre partenaire foncier selon disponibilité et autorisation de publicité, prix du terrain hors frais de notaire et d’hypothèque.
Prix maison : hors papiers peints, peintures, revêtements de sol dans les chambres, cuisines, meubles vasques, et faïences (modifiable sans préavis, prix variables suivant les prestations souhaitées) hors frais d’hypothèque.        
            
                                        


