Exclusivité à Saint-Maugan!
Située à Saint-Maugan, à proximité de Iffendic, Montfort-sur-Meu, cette maison bipente ardoises dispose d'un jardin de 580m² et d'une orientation Ouest idéale.
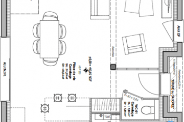
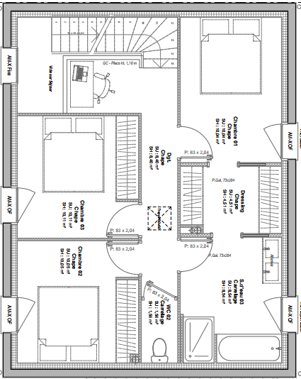
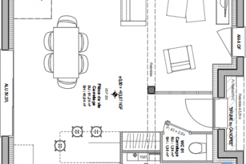
Cette maison de 110m² comprend :
* au rez-de-chaussée : une pièce de vie de 49m² avec cuisine ouverte, une arrière-cuisine, des WC séparés,
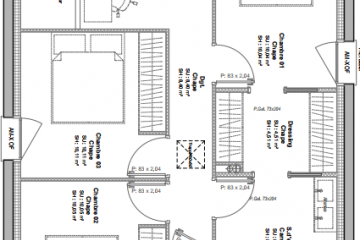
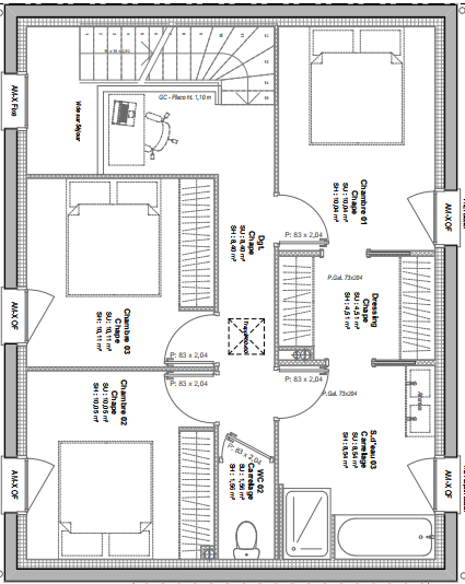
* à l'étage : 3 chambres dont une suite parentale, un dressing, des WC séparés, une salle d'eau accessible depuis le palier et depuis la chambre parentale.
Cette maison dispose également d'un carport attenant.
Votre projet Maison + Terrain à partir de 264000€ (Hors frais).
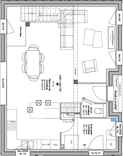
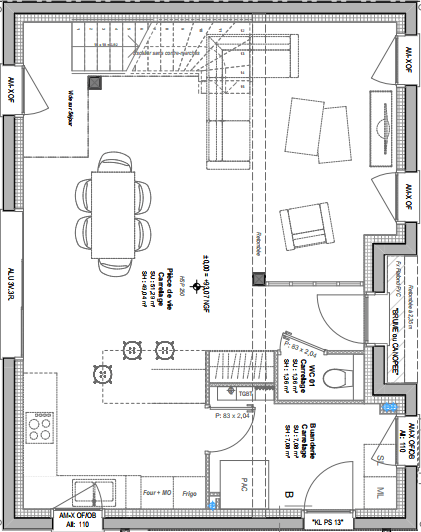
Extension possible de 11m² au rez-de-chaussée (visuel 2) pour chambre et salle d'eau (plus-value de 16 000€).
NON MANDATÉ POUR LA VENTE DES TERRAINS
Maisons CREATION Rennes n’est pas chargé de réaliser la vente des terrains à bâtir mentionnés dans ces annonces.
Maisons CREATION Rennes agit seulement en qualité de constructeur.
Informations complémentaires
| Chambre(s) : 3 | Salle(s) de bain : 1 | Surface habitable : 110 m² |
| Surface terrain : 580 m² | Surface annexe : 110 m² | Garage(s) : 0 |
| Prix : 264 000 € |
Géolocalisation du bien
*Terrain proposé et vendu par notre partenaire foncier selon disponibilité et autorisation de publicité, prix du terrain hors frais de notaire et d’hypothèque.
Prix maison : hors papiers peints, peintures, revêtements de sol dans les chambres, cuisines, meubles vasques, et faïences (modifiable sans préavis, prix variables suivant les prestations souhaitées) hors frais d’hypothèque.






