MAISONS CRÉATION vous propose un projet TERRAIN + MAISON RE2020 situé à proximité de la mer, entre Dinard et Saint-Malo, au sein d’un tout nouveau lotissement.
Le projet est implanté sur un grand terrain viabilisé de 671 m², bénéficiant d’une exposition plein SUD, offrant un cadre de vie lumineux et privilégié sur le littoral.
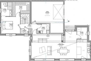
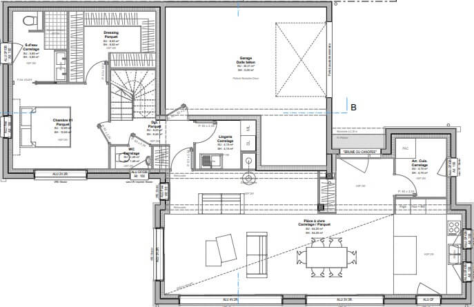
Cet exemple de maison RE2020 développe 148 m² habitables et se compose :
Au rez-de-chaussée :
- Un grand espace de vie lumineux avec vide sur séjour
- Une suite parentale avec salle d’eau
- Un WC indépendant
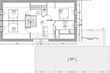
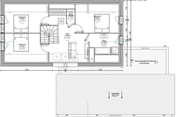
À l’étage :
- 3 chambres
- Une salle de bains
- Un WC indépendant
Un projet personnalisable
Prix incluant le terrain viabilisé, les garanties et assurances (hors frais annexes et finitions de la maison).
Pour plus de renseignements, contactez notre équipe commerciale MAISONS CRÉATION : 02 99 05 36 46
Informations complémentaires
| Chambre(s) : 4 | Salle(s) de bain : 2 | Surface habitable : 148 m² |
| Surface terrain : 551 m² | Surface annexe : 54 m² | Garage(s) : 1 |
| Prix : 855 000 € |
Géolocalisation du bien
*Terrain proposé et vendu par notre partenaire foncier selon disponibilité et autorisation de publicité, prix du terrain hors frais de notaire et d’hypothèque.
Prix maison : hors papiers peints, peintures, revêtements de sol dans les chambres, cuisines, meubles vasques, et faïences (modifiable sans préavis, prix variables suivant les prestations souhaitées) hors frais d’hypothèque.




