Belle opportunité à proximité d'Evran, sur la commune de ST JUDOCE qui se situe à seulement 20 minutes de Dinan et 30 minutes de Rennes
Maisons Création vous propose un projet de construction sur un terrain de 505 m2 très bien exposé avec son jardin ensoleillé,
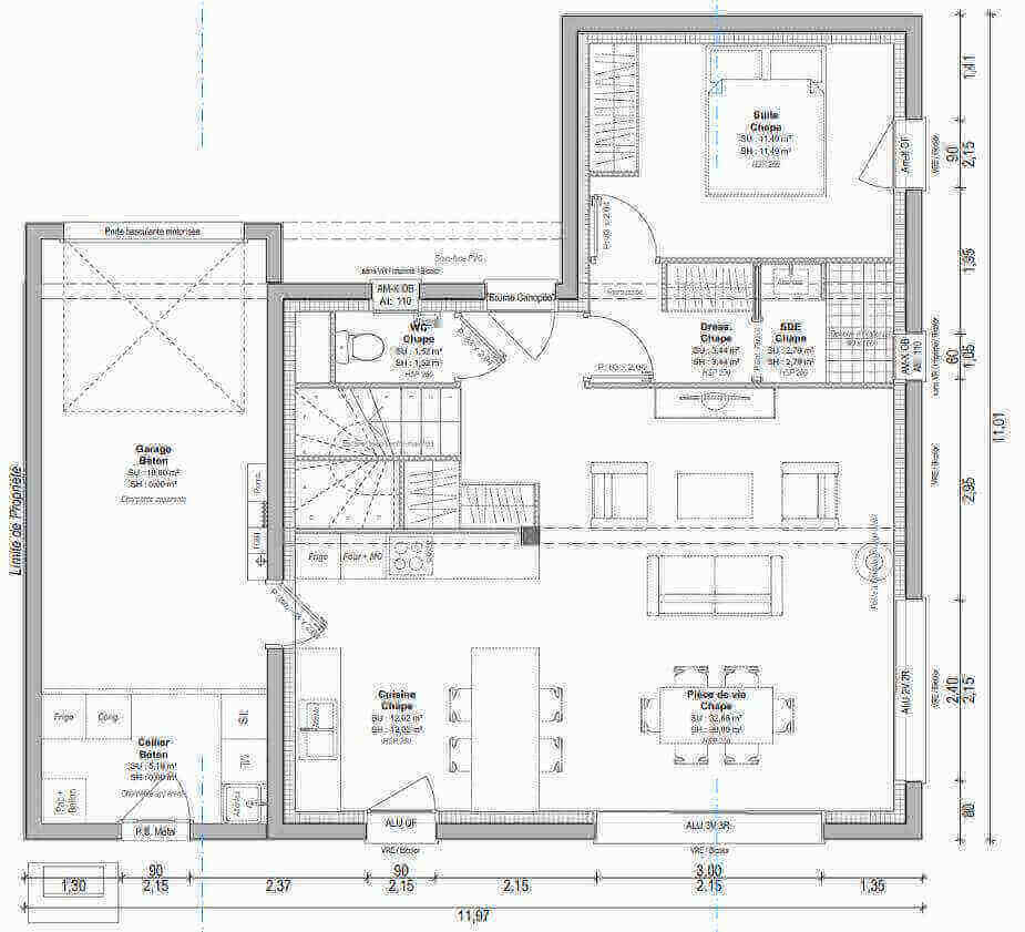
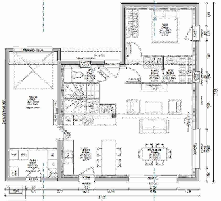
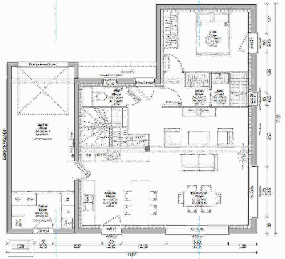
Cette maison fonctionnelle dispose d'un salon spacieux et lumineux avec une cuisine ouverte et une arrière-cuisine communicante avec le garage.
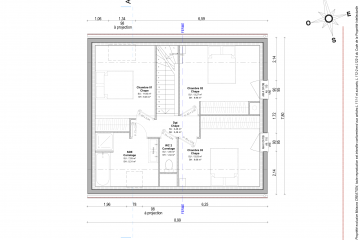
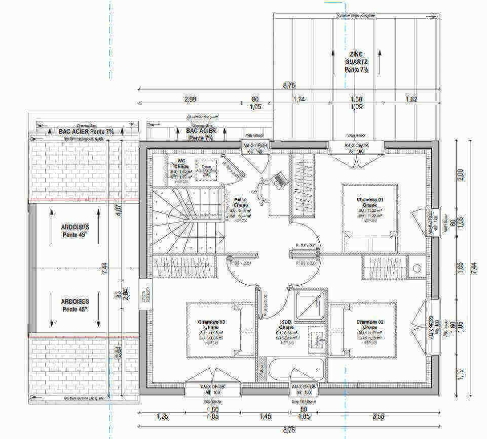
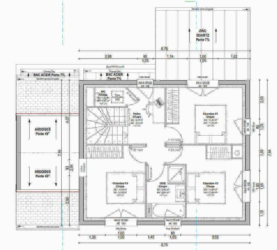
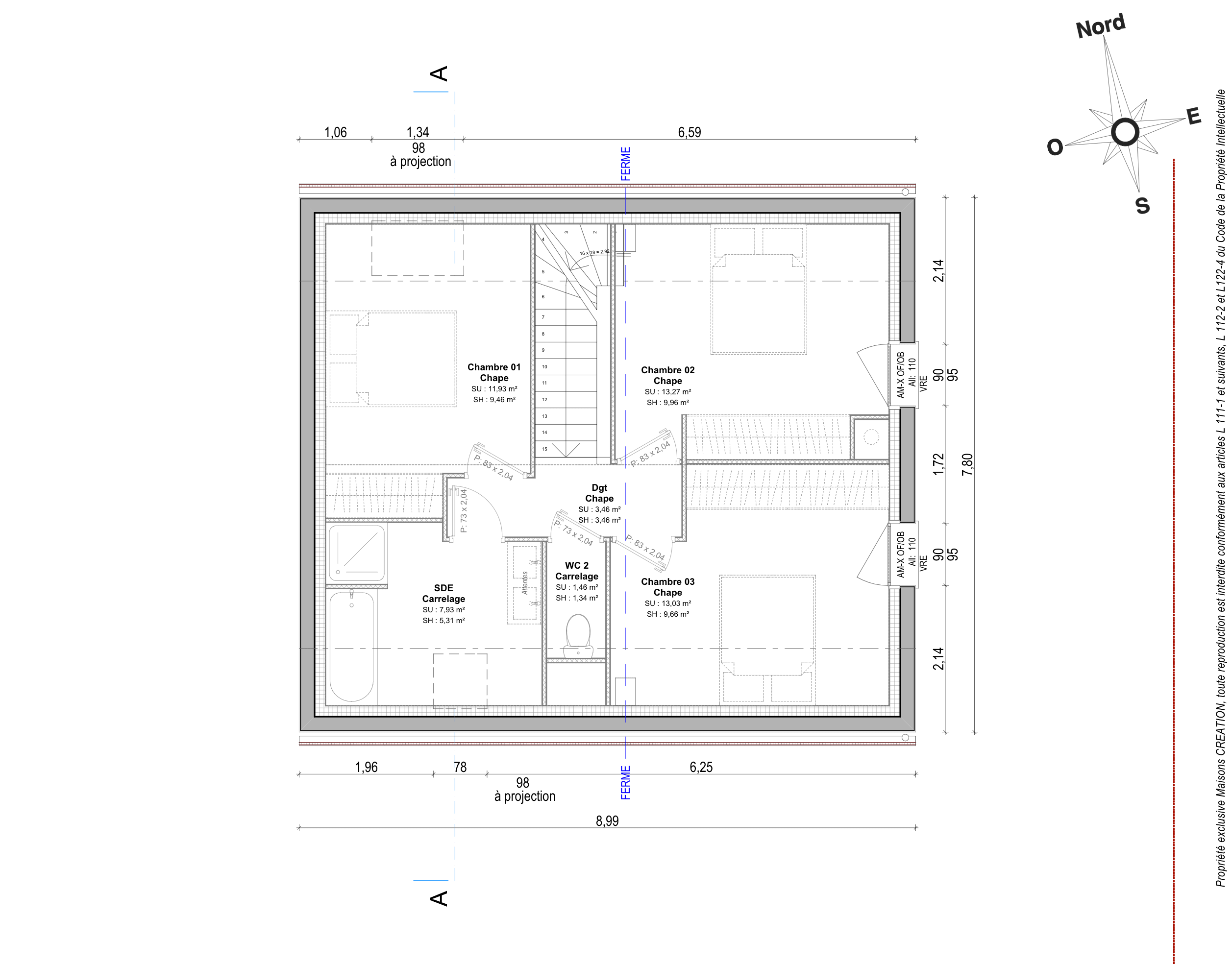
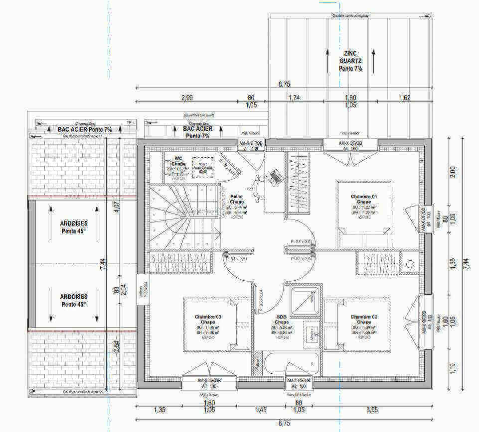
Le rez-de-chaussée comprend également un hall d'entrée avec un grand placard et un WC. A l'étage, vous trouverez trois chambres spacieuses avec placard et une salle d'eau avec WC.
Pour votre confort de vie, cette maison dispose d'un plancher chauffant et de volets roulants électriques alimentés par une pompe à chaleur, conformément aux normes de la RE2020.
Chez Maisons Creation, nous personnalisons entièrement tous nos projets pour répondre à vos attentes en termes de conception et de prestations.
*Terrain proposé et vendu par notre partenaire foncier selon disponibilité et autorisation de publicité, prix du terrain hors frais de notaire et d’hypothèque.
Prix maison : hors papiers peints, peintures, revêtements de sol dans les chambres, cuisines, meubles vasques, et faïences (modifiable sans préavis, prix variables suivant les prestations souhaitées) hors frais d’hypothèque.
Informations complémentaires
| Chambre(s) : 3 | Salle(s) de bain : 1 | Surface habitable : 81 m² |
| Surface terrain : 632 m² | Surface annexe : 40 m² | Garage(s) : 1 |
| Prix : 220 000 € |
Géolocalisation du bien
*Terrain proposé et vendu par notre partenaire foncier selon disponibilité et autorisation de publicité, prix du terrain hors frais de notaire et d’hypothèque.
Prix maison : hors papiers peints, peintures, revêtements de sol dans les chambres, cuisines, meubles vasques, et faïences (modifiable sans préavis, prix variables suivant les prestations souhaitées) hors frais d’hypothèque.




