Dans un environnement privilégié de la commune de SAINT-GREGOIRE, MAISONS CREATION vous propose un projet de construction personnalisable sur une parcelle de 325 m² exposée SUD.
Nous vous suggerons cette maison de 148 m² composée :
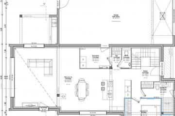
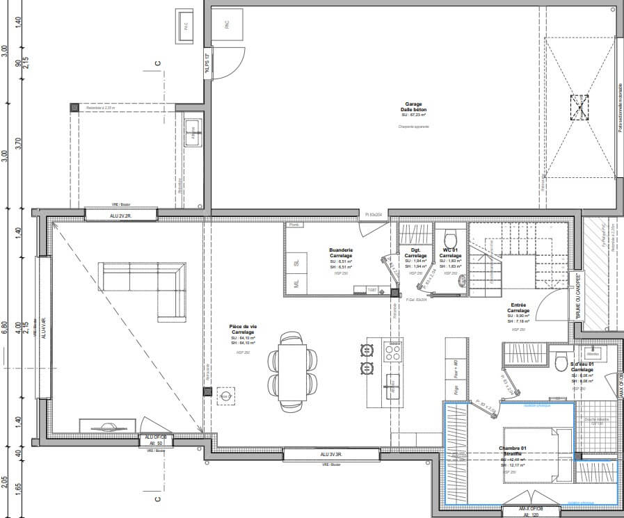
Au rez-de-chaussée, d'une entrée avec placard, d'un vaste séjour de 64 m² avec cuisine ouverte sur salle à manger avec chemininée, un salon lumineux avec une baie double hauteur donnant accès à une terrasse SUD. La buanderie donne accès au garage/ atelier de 60 m².
Une suite parentale vient compléter ce niveau.
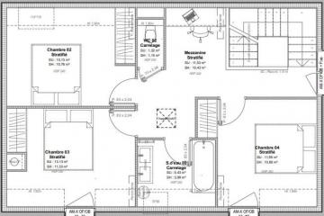
A l'étage, trois chambres avec placard, une salle de bain et une mezzanine faisant office de bureau.
Pour de plus amples renseignements consuler notre équipe commerciale.
Informations complémentaires
| Chambre(s) : 4 | Salle(s) de bain : 2 | Surface habitable : 148 m² |
| Surface terrain : 325 m² | Surface annexe : 64 m² | Garage(s) : 1 |
| Prix : 668 130 € |
Géolocalisation du bien
*Terrain proposé et vendu par notre partenaire foncier selon disponibilité et autorisation de publicité, prix du terrain hors frais de notaire et d’hypothèque.
Prix maison : hors papiers peints, peintures, revêtements de sol dans les chambres, cuisines, meubles vasques, et faïences (modifiable sans préavis, prix variables suivant les prestations souhaitées) hors frais d’hypothèque.








