MAISONS CREATION vous propose un projet de construction personnalisable situé à Saint-Grégoire, dans un environnement privilégié, sur une parcelle de 325 m² exposée SUD.
Maison 148 m² – 4 chambres – Garage / Atelier
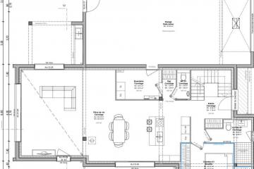
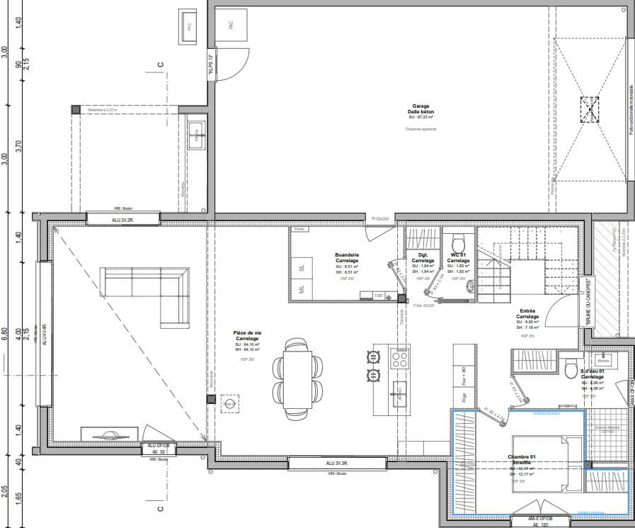
Cet exemple de maison de 148 m² habitables se compose :
Au rez-de-chaussée :
- Une entrée avec placard
- Un vaste séjour de 64 m² avec cuisine ouverte sur la salle à manger et cheminée
- Un salon lumineux avec baie double hauteur, donnant accès à une terrasse exposée SUD
- Une buanderie avec accès direct au garage / atelier de 60 m²
- Une suite parentale
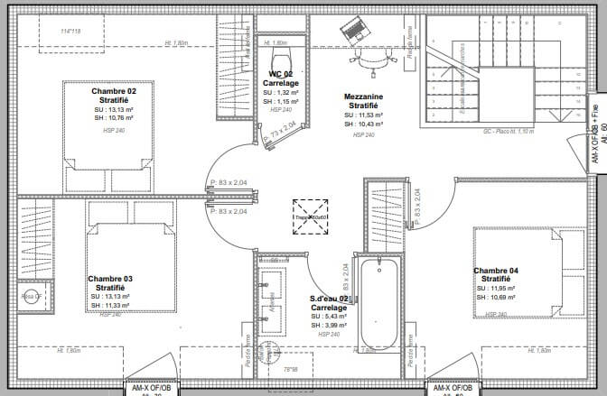
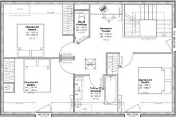
À l’étage :
- 3 chambres avec placards
- Une salle de bain
- Une mezzanine faisant office de bureau
Pour plus de renseignements, contactez notre équipe commerciale MAISONS CRÉATION : 02 99 05 36 46
Informations complémentaires
| Chambre(s) : 4 | Salle(s) de bain : 2 | Surface habitable : 148 m² |
| Surface terrain : 325 m² | Surface annexe : 64 m² | Garage(s) : 1 |
| Prix : 668 130 € |
Géolocalisation du bien
*Terrain proposé et vendu par notre partenaire foncier selon disponibilité et autorisation de publicité, prix du terrain hors frais de notaire et d’hypothèque.
Prix maison : hors papiers peints, peintures, revêtements de sol dans les chambres, cuisines, meubles vasques, et faïences (modifiable sans préavis, prix variables suivant les prestations souhaitées) hors frais d’hypothèque.






