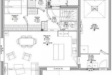
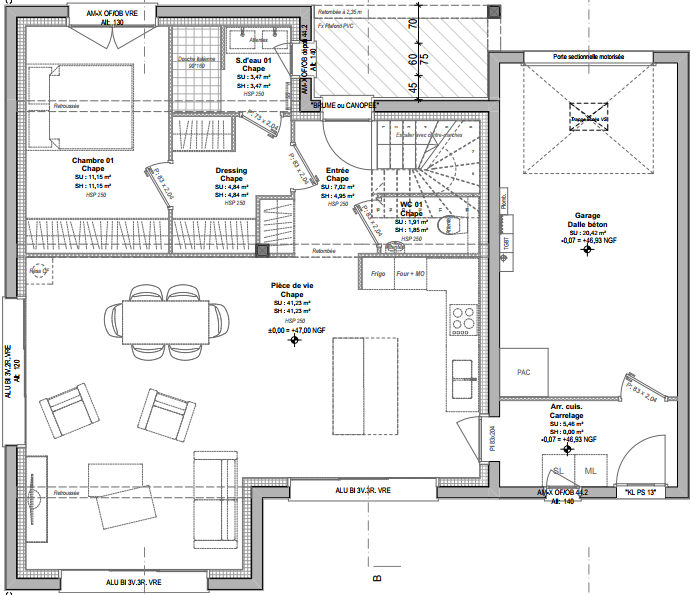
Idéalement situé à SAINT-GONDRAN, proche de SAINT-SYMPHORIEN et sur l'axe Rennes/Saint-Malo, , nous vous proposons, sur un terrain de 426m², une maison de 118m² se composant comme suit :
* au rez-de-chaussée : une pièce de vie de plus de 41m², une suite parentale d'environ 20 m² avec salle d'eau et dressing, une arrière-cuisine et des WC séparés,
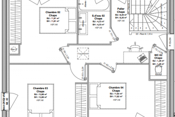
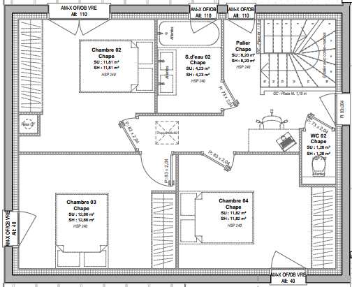
* à l'étage : 3 chambres, une mezzanine faisant office de bureau (possibilité de télétravail), une salle de bains et des WC séparés.
Garage inclus.
Possibilité de prévoir un grenier d'environ 26m² au dessus du garage communiquant avec l'étage.
Projet entièrement personnalisable.
Informations complémentaires
| Chambre(s) : 4 | Salle(s) de bain : 2 | Surface habitable : 118 m² |
| Surface terrain : 426 m² | Surface annexe : 42 m² | Garage(s) : 1 |
| Prix : 315 000 € |
Géolocalisation du bien
*Terrain proposé et vendu par notre partenaire foncier selon disponibilité et autorisation de publicité, prix du terrain hors frais de notaire et d’hypothèque.
Prix maison : hors papiers peints, peintures, revêtements de sol dans les chambres, cuisines, meubles vasques, et faïences (modifiable sans préavis, prix variables suivant les prestations souhaitées) hors frais d’hypothèque.





