MAISONS CREATION vous propose un projet de construction personnalisable sur un terrain de 367 m², exposé Sud, situé dans un environnement verdoyant à Saint-Erblon.
Maison 109 m² – 4 chambres – Garage
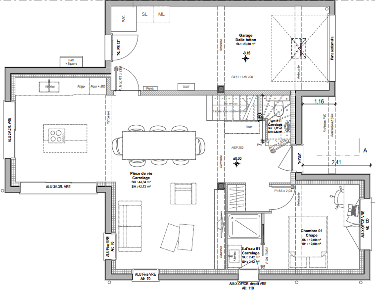
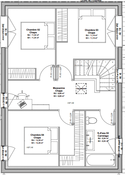
Cet exemple de maison contemporaine de 109 m² habitables se compose :
Au rez-de-chaussée :
- D'un espace de vie lumineux, pensés pour le confort et la fonctionnalité
- Une chambre avec salle d’eau privative
- Un WC indépendant
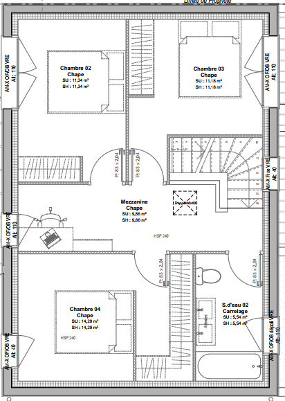
À l’étage :
- 3 chambres dont une avec dressing
- Une salle de bains familiale avec WC
- Une mezzanine faisant office de bureau / bibliothèque.
Annexes
- Un garage attenant avec buanderie
Ce projet est entièrement personnalisable : conception intérieure, agencement des espaces, choix des matériaux et des finitions, selon vos envies et votre budget.
Pour de plus amples renseignements, contactez notre équipe commerciale MAISONS CREATION : 02 99 05 36 46
Informations complémentaires
| Chambre(s) : 4 | Salle(s) de bain : 2 | Surface habitable : 109 m² |
| Surface terrain : 367 m² | Surface annexe : 43 m² | Garage(s) : 1 |
| Prix : 333 540 € |
Géolocalisation du bien
*Terrain proposé et vendu par notre partenaire foncier selon disponibilité et autorisation de publicité, prix du terrain hors frais de notaire et d’hypothèque.
Prix maison : hors papiers peints, peintures, revêtements de sol dans les chambres, cuisines, meubles vasques, et faïences (modifiable sans préavis, prix variables suivant les prestations souhaitées) hors frais d’hypothèque.






