En plein centre-ville de la charmante commune de SAINT-ERBLON, découvrez notre projet de construction sur mesure.
Implantée dans un environnement résidentiel de qualité, cette maison sur deux niveaux offre une surface habitable de 110 m².
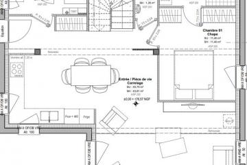
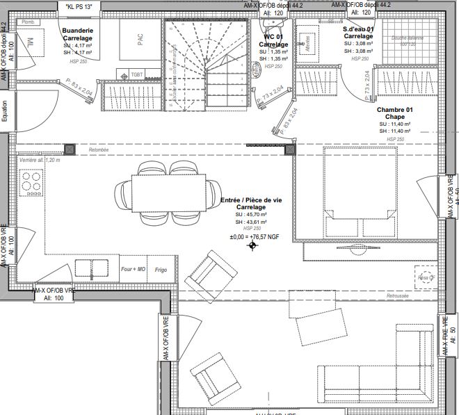
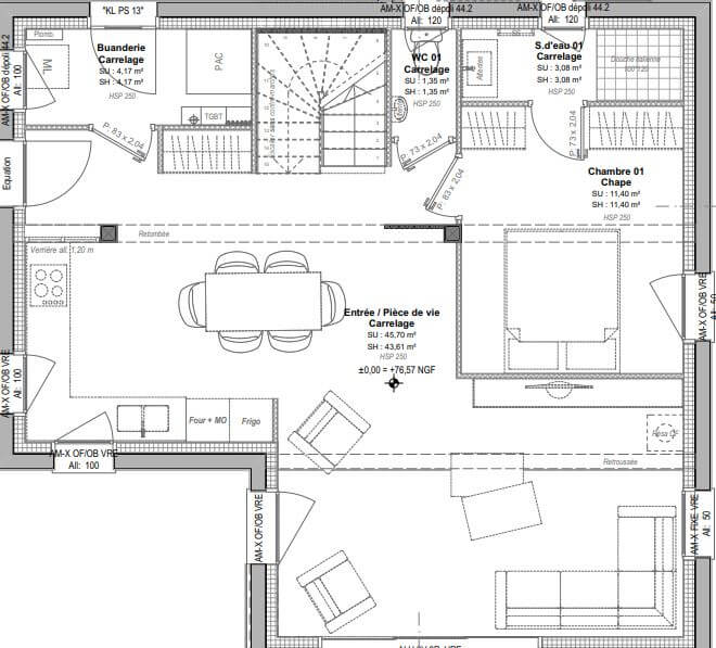
Au rez-de-chaussée, vous trouverez une entrée accueillante, une spacieuse pièce de vie de 45 m² avec cuisine ouverte, ainsi qu'un espace nuit comprenant une suite parentale avec dressing, salle d'eau et WC séparé. Une buanderie avec accès au garage complète cet espace pratique et fonctionnel.
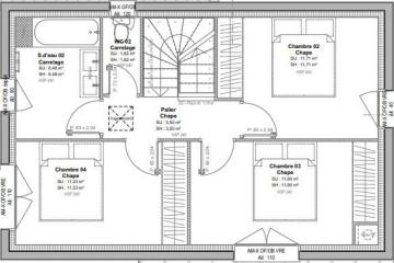
À l'étage, vous attendent 3 chambres avec placards, une salle de bain et un WC séparé.
Pour obtenir plus de détails sur ce projet, n'hésitez pas à contacter notre équipe commerciale de MAISONS CRÉATION au 02 99 05 36 46.
Informations complémentaires
| Chambre(s) : 4 | Salle(s) de bain : 2 | Surface habitable : 110 m² |
| Surface terrain : 336 m² | Surface annexe : 43 m² | Garage(s) : 1 |
| Prix : 325 998 € |
Géolocalisation du bien
*Terrain proposé et vendu par notre partenaire foncier selon disponibilité et autorisation de publicité, prix du terrain hors frais de notaire et d’hypothèque.
Prix maison : hors papiers peints, peintures, revêtements de sol dans les chambres, cuisines, meubles vasques, et faïences (modifiable sans préavis, prix variables suivant les prestations souhaitées) hors frais d’hypothèque.








