MAISONS CRÉATION vous propose un projet de construction sur mesure situé à Saint-Erblon, en plein centre-ville, dans un environnement résidentiel de qualité.
Cet exemple de maison sur deux niveaux, d’une surface habitable de 110 m², se compose :
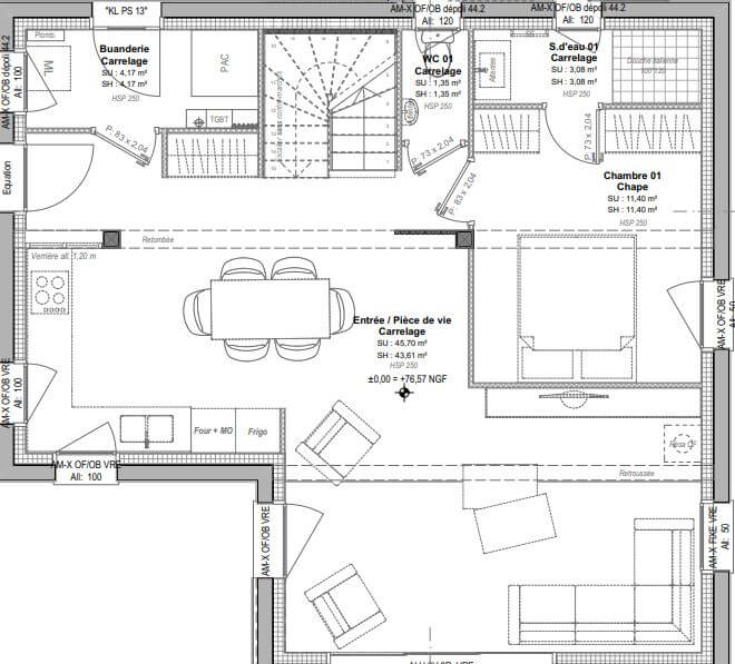
Au rez-de-chaussée :
- Une entrée
- Une pièce de vie de 45 m² avec cuisine ouverte
- Une suite parentale avec dressing et salle d’eau
- Des WC séparés
- Une buanderie avec accès au garage
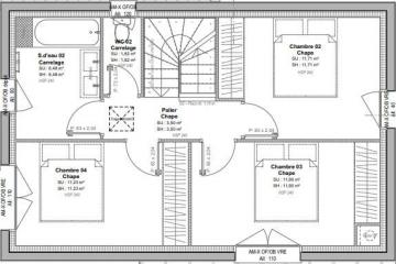
À l’étage :
- 3 chambres avec placards
- Une salle de bain
- Un WC séparé
Informations complémentaires
| Chambre(s) : 4 | Salle(s) de bain : 2 | Surface habitable : 110 m² |
| Surface terrain : 336 m² | Surface annexe : 43 m² | Garage(s) : 1 |
| Prix : 325 998 € |
Géolocalisation du bien
*Terrain proposé et vendu par notre partenaire foncier selon disponibilité et autorisation de publicité, prix du terrain hors frais de notaire et d’hypothèque.
Prix maison : hors papiers peints, peintures, revêtements de sol dans les chambres, cuisines, meubles vasques, et faïences (modifiable sans préavis, prix variables suivant les prestations souhaitées) hors frais d’hypothèque.






