MAISONS CRÉATION vous propose un projet de construction personnalisable situé à Saint-Domineuc, dans une situation idéale entre Rennes et Saint-Malo, avec une proximité immédiate de la 4 voies et de l’ensemble des services nécessaires au quotidien (commerces, écoles maternelles et primaires, professionnels de santé, associations sportives).
Le projet est implanté sur un terrain de 554 m², exposé SUD, pouvant convenir à une résidence principale ou secondaire.
Maison 4 chambres – Garage
Cet exemple de maison se compose :
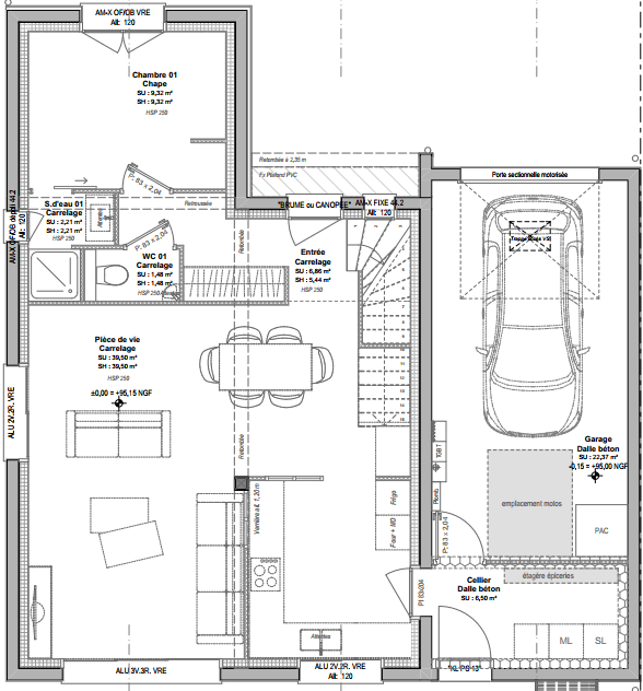
Au rez-de-chaussée :
- Une entrée
- Une cuisine ouverte
- Une buanderie
- Des WC séparés
- Une salle d’eau
- Une chambre parentale de 12 m² avec salle d’eau et placard
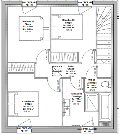
À l’étage :
- Des WC séparés
- Une salle de bains
- Une chambre de 12 m² avec placard
- 2 chambres de 11 m² avec placards
Annexes
- Un garage attenant
Ce projet est entièrement personnalisable, tant dans la conception intérieure et architecturale que dans le choix des prestations.
Pour plus d’informations, contactez notre équipe commerciale MAISONS CRÉATION : 02 99 05 36 46
Informations complémentaires
| Chambre(s) : 4 | Salle(s) de bain : 2 | Surface habitable : 120 m² |
| Surface terrain : 554 m² | Surface annexe : 45 m² | Garage(s) : 1 |
| Prix : 324 700 € |
Géolocalisation du bien
*Terrain proposé et vendu par notre partenaire foncier selon disponibilité et autorisation de publicité, prix du terrain hors frais de notaire et d’hypothèque.
Prix maison : hors papiers peints, peintures, revêtements de sol dans les chambres, cuisines, meubles vasques, et faïences (modifiable sans préavis, prix variables suivant les prestations souhaitées) hors frais d’hypothèque.



