DERNIÈRE OPPORTUNITÉ
MAISONS CRÉATION vous propose un projet de construction personnalisable situé en plein centre-bourg de Saint-Coulomb, à proximité immédiate des commerces et services, et à seulement 5 minutes de la plage de la Touesse, aux portes de Saint-Malo.
Le projet est implanté sur un terrain de 250 m² orienté SUD-OUEST.
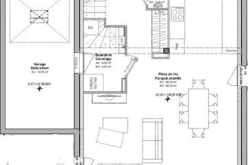
Cet exemple de maison développe 95 m² habitables et se compose :
Au rez-de-chaussée :
- Une entrée avec placard
- Un vaste salon/séjour avec cuisine ouverte
- Une belle luminosité grâce aux grandes baies vitrées ouvrant sur la terrasse
- Une buanderie avec accès direct au garage
À l’étage :
- 3 chambres, dont une avec salle d’eau privative
- Une salle de bain avec douche
- Un WC séparé
Annexes
- Un garage, permettant le stationnement et le rangement (vélo, matériel, équipements électriques)
Pour plus de renseignements, contactez notre équipe commerciale MAISONS CRÉATION : 02 99 05 36 46
Informations complémentaires
| Chambre(s) : 3 | Salle(s) de bain : 2 | Surface habitable : 95 m² |
| Surface terrain : 484 m² | Surface annexe : 40 m² | Garage(s) : 1 |
| Prix : 440 000 € |
Géolocalisation du bien
*Terrain proposé et vendu par notre partenaire foncier selon disponibilité et autorisation de publicité, prix du terrain hors frais de notaire et d’hypothèque.
Prix maison : hors papiers peints, peintures, revêtements de sol dans les chambres, cuisines, meubles vasques, et faïences (modifiable sans préavis, prix variables suivant les prestations souhaitées) hors frais d’hypothèque.




