DERNIÈRE OPPORTUNITÉ !
Proche de Saint-Malo, MAISONS CREATION vous propose un projet de construction dans le centre-bourg de SAINT-COULOMB avec un accès aux commerces et services, à seulement 5 minutes de la plage de la Touesse.
Ce projet de construction personnalisable, répartie sur 95 m² bénéficiant d'un terrain de 250 m² orienté Sud-Ouest.
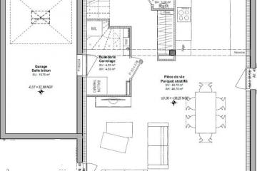
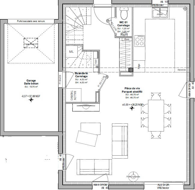
Au rez-de-chaussée, vous trouverez une entrée avec placard conduisant à un vaste salon/séjour avec cuisine ouverte.
La pièce de vie bénéficie d’une belle luminosité grâce aux grandes baies vitrées donnant sur une terrasse.
La buanderie permet un accès au garage depuis la maison.
A l'étage, trois chambres, dont une avec salle d'eau privative, une salle de bain douche et un WC séparé.
Le garage permet de ranger une voiture, des vélos (prises pour véhicule et vélos électriques), une tondeuse, des outils, un barbecue...)
Projet terrain + maison à partir de 340 000 €
Pour de plus amples renseignements, nous consulter.
Informations complémentaires
| Chambre(s) : 3 | Salle(s) de bain : 2 | Surface habitable : 95 m² | 
| Surface terrain : 484 m² | Surface annexe : 40 m² | Garage(s) : 1 | 
| Prix : 440 000 € | 
Géolocalisation du bien
            *Terrain proposé et vendu par notre partenaire foncier selon disponibilité et autorisation de publicité, prix du terrain hors frais de notaire et d’hypothèque.
Prix maison : hors papiers peints, peintures, revêtements de sol dans les chambres, cuisines, meubles vasques, et faïences (modifiable sans préavis, prix variables suivant les prestations souhaitées) hors frais d’hypothèque.        
            
                                        


