MAISONS CRÉATION vous propose un projet de construction RE2020 entièrement personnalisable, situé en plein bourg, au sein d’un lotissement neuf, à seulement 10 minutes de Saint-Malo.
Le projet est implanté sur un terrain de 480 m² exposé plein SUD, offrant un cadre de vie lumineux et agréable.
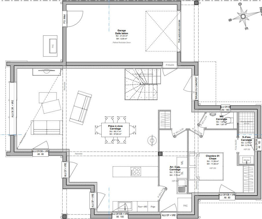
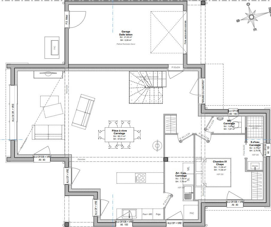
Cet exemple de maison développe 145 m² habitables et se compose :
Au rez-de-chaussée :
- Un grand espace de vie lumineux avec vide sur séjour
- Une chambre avec salle d’eau
- Un WC indépendant
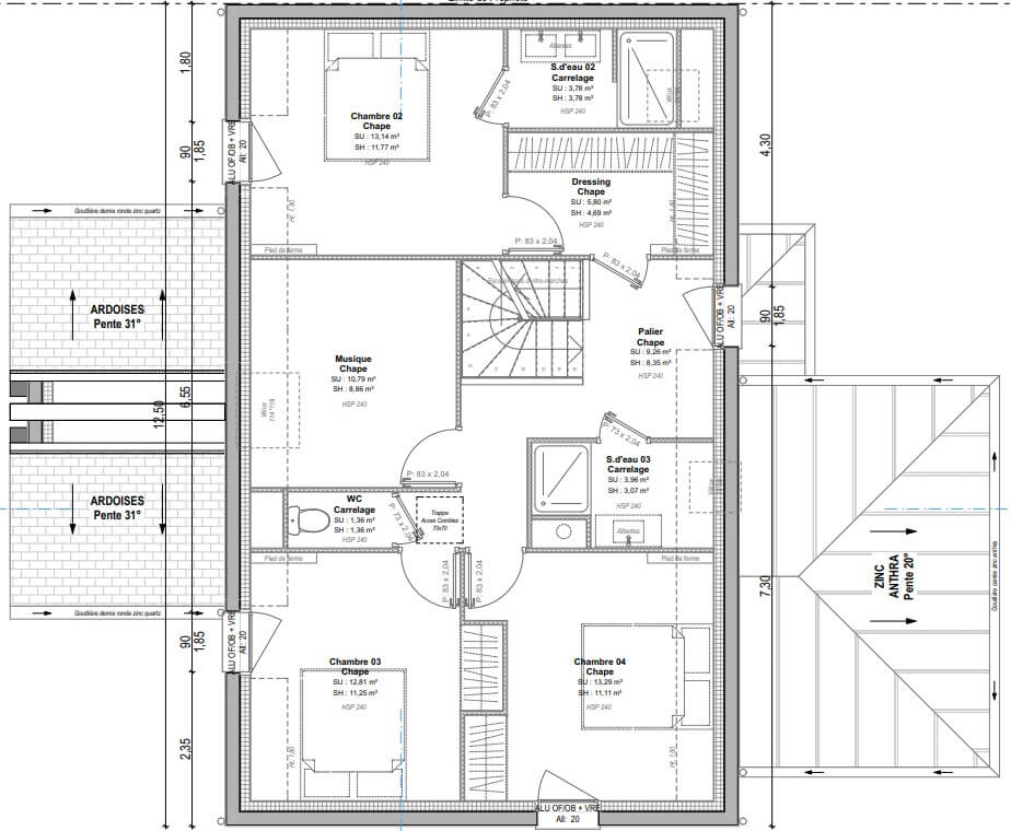
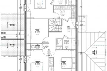
À l’étage :
- 3 chambres
- Une salle de bains
- Un WC indépendant
Points clés du projet
- Maison RE2020
- Projet entièrement personnalisable
- Terrain viabilisé inclus
- Garanties et assurances comprises
Un projet personnalisable
Pour plus de renseignements, contactez notre équipe commerciale MAISONS CRÉATION : 02 99 05 36 46
Informations complémentaires
| Chambre(s) : 4 | Salle(s) de bain : 2 | Surface habitable : 145 m² |
| Surface terrain : 484 m² | Surface annexe : 50 m² | Garage(s) : 1 |
| Prix : 575 000 € |
Géolocalisation du bien
*Terrain proposé et vendu par notre partenaire foncier selon disponibilité et autorisation de publicité, prix du terrain hors frais de notaire et d’hypothèque.
Prix maison : hors papiers peints, peintures, revêtements de sol dans les chambres, cuisines, meubles vasques, et faïences (modifiable sans préavis, prix variables suivant les prestations souhaitées) hors frais d’hypothèque.




