Situation idéale à Saint-Aubin-du-Cormier !
Située à proximité du centre bourg, cette maison contemporaine à étage bénéficie d'une belle luminosité et d'un jardin et 327m²
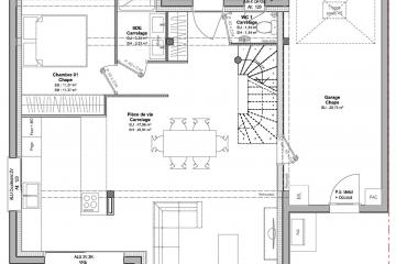
Proche du centre, 5 minutes à pied, à proximité des écoles, proche de la rue piétonne, près des commodités et services est composée de 5 pièces répartie sur 102m².
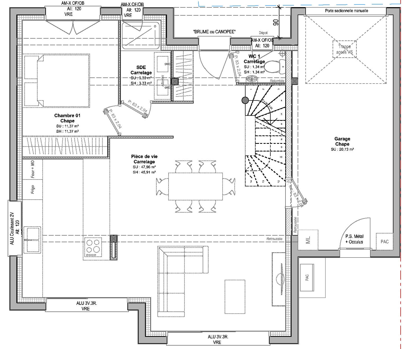
Cette maison comprend au rez-de-chaussée, une entrée, une cuisine ouverte, des WC séparés, un Salon / Séjour de 45m², une chambre parentale de 11m², avec une salle d'eau, avec placard,
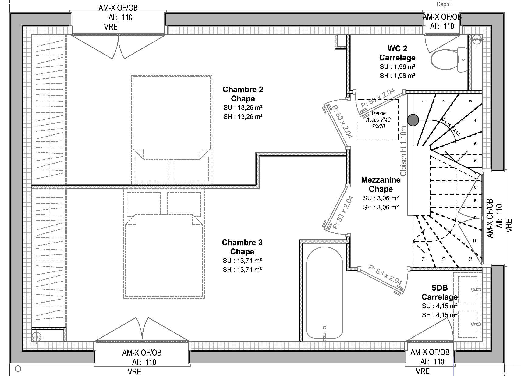
A l'étage, vous pourrez profiter, de WC séparés, d'une salle de bains, de 2 chambres de 13m², avec placard.
Cette maison dispose également d'un garage attenant.
Votre projet Maison + Terrain à partir de 278160€ (Hors frais)
Informations complémentaires
| Chambre(s) : 3 | Salle(s) de bain : 2 | Surface habitable : 102 m² |
| Surface terrain : 327 m² | Surface annexe : 45 m² | Garage(s) : 1 |
| Prix : 278 160 € |
Géolocalisation du bien
*Terrain proposé et vendu par notre partenaire foncier selon disponibilité et autorisation de publicité, prix du terrain hors frais de notaire et d’hypothèque.
Prix maison : hors papiers peints, peintures, revêtements de sol dans les chambres, cuisines, meubles vasques, et faïences (modifiable sans préavis, prix variables suivant les prestations souhaitées) hors frais d’hypothèque.





