MAISONS CRÉATION vous propose un projet de construction, idéal pour un primo-accédant, situé à Saint-Aubin-des-Landes, à proximité de Vitré et de l’axe Rennes – Paris, dans un secteur agréable, proche des commodités et services.
Le projet est implanté sur un terrain de 230 m², orienté SUD-OUEST, offrant une belle luminosité et un jardin.
La maison présente une architecture contemporaine à toit plat.
Maison contemporaine – 102 m² – 4 chambres – Garage
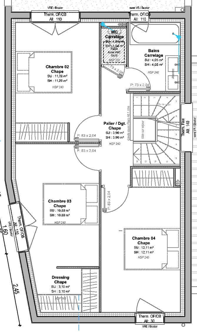
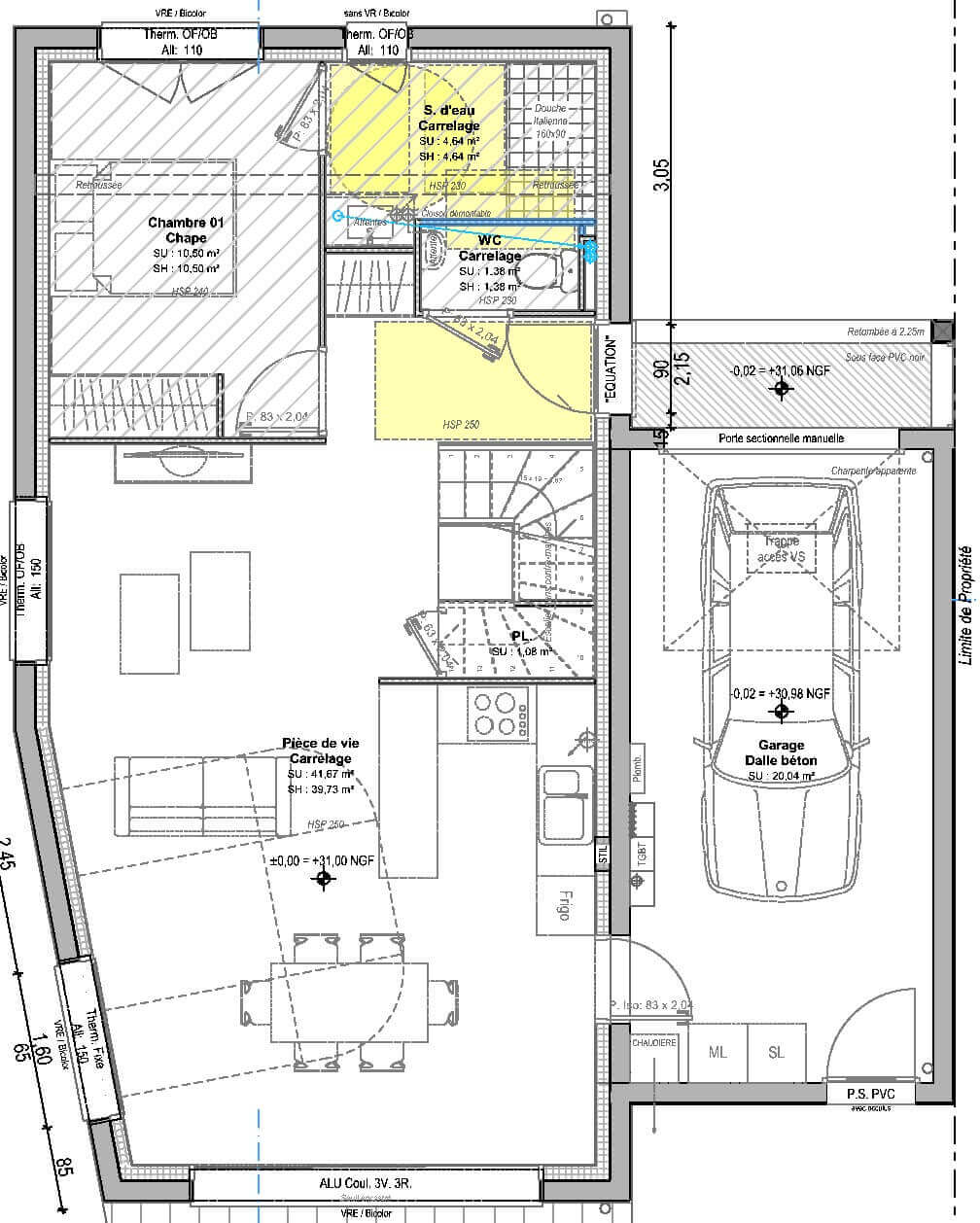
Cet exemple de maison design, composée de 5 pièces et développant 102 m² habitables, se compose :
Au rez-de-chaussée :
- Une entrée
- Une cuisine ouverte
- Un salon / séjour de 40 m²
- Une chambre avec salle d’eau et placard
- Des WC séparés
À l’étage :
- Une chambre parentale avec dressing
- 2 chambres avec placards
- Une salle de bains
- Des WC séparés
Annexes
- Un garage attenant
Pour plus de renseignements, contactez notre équipe commerciale MAISONS CRÉATION : 02 99 05 36 46
Informations complémentaires
| Chambre(s) : 4 | Salle(s) de bain : 2 | Surface habitable : 102 m² |
| Surface terrain : 230 m² | Surface annexe : 40 m² | Garage(s) : 1 |
| Prix : 231 600 € |
Géolocalisation du bien
*Terrain proposé et vendu par notre partenaire foncier selon disponibilité et autorisation de publicité, prix du terrain hors frais de notaire et d’hypothèque.
Prix maison : hors papiers peints, peintures, revêtements de sol dans les chambres, cuisines, meubles vasques, et faïences (modifiable sans préavis, prix variables suivant les prestations souhaitées) hors frais d’hypothèque.



