Située à Romagné, à proximité de Fougères, proche de l'A84, cette maison bénéficie d'une belle luminosité et d'un jardin de 430m² orienté Sud, à proximité des commodités et services.
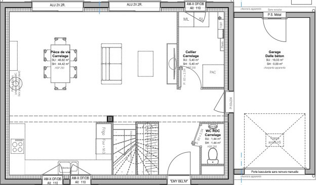
Elle se compose de 4 pièces répartie sur 92m² et comprend *:
- au rez-de-chaussée : une cuisine ouverte, un Salon / Séjour de 45m², un cellier et des WC séparés,
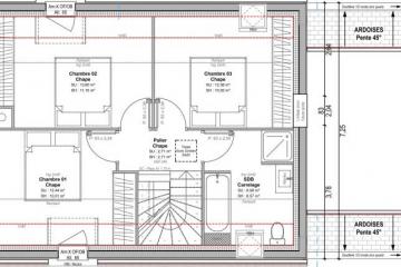
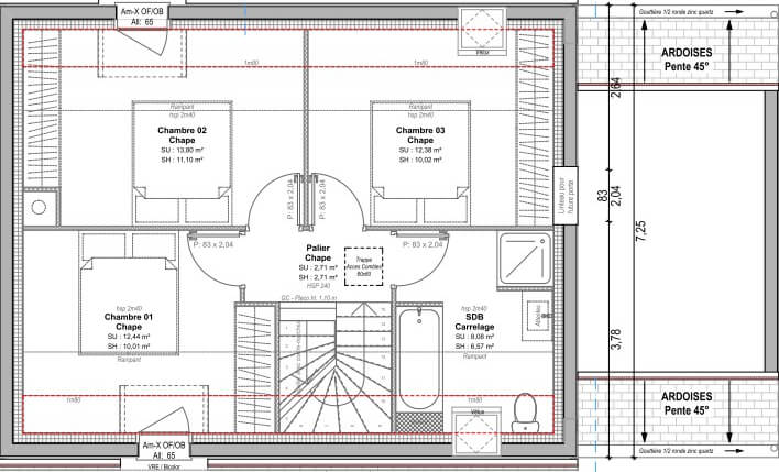
- à l'étage : 3 chambres d'environ 13m², des WC séparés, une salle de bains (douche et baignoire).
Cette maison dispose également d'un garage attenant.
Votre projet Maison + Terrain à partir de 242600€ (Hors frais)
Informations complémentaires
| Chambre(s) : 3 | Salle(s) de bain : 1 | Surface habitable : 92 m² |
| Surface terrain : 430 m² | Surface annexe : 45 m² | Garage(s) : 1 |
| Prix : 242 600 € |
Géolocalisation du bien
*Terrain proposé et vendu par notre partenaire foncier selon disponibilité et autorisation de publicité, prix du terrain hors frais de notaire et d’hypothèque.
Prix maison : hors papiers peints, peintures, revêtements de sol dans les chambres, cuisines, meubles vasques, et faïences (modifiable sans préavis, prix variables suivant les prestations souhaitées) hors frais d’hypothèque.





