MAISONS CRÉATION vous propose un projet de construction situé à Québriac, sur un terrain de 436 m², au sein d’un petit hameau, à quelques mètres du complexe sportif et du centre bourg.
Le projet bénéficie d’une situation idéale, à proximité immédiate des commerces (supérette, boulangerie, restaurant, bar, etc.) et de l’école. Vous êtes également à 5 minutes de Tinténiac, de l’ensemble de ses services (écoles primaires, collèges, maison médicale, supermarché…) et de l’accès à la 4 voies Rennes – Saint-Malo.
Maison 108 m² – 3 chambres – Garage
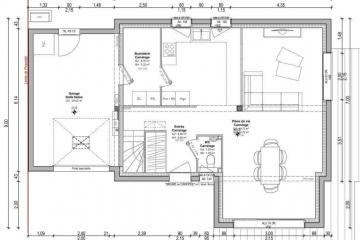
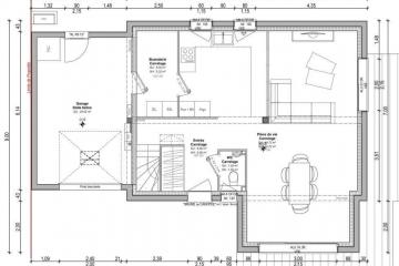
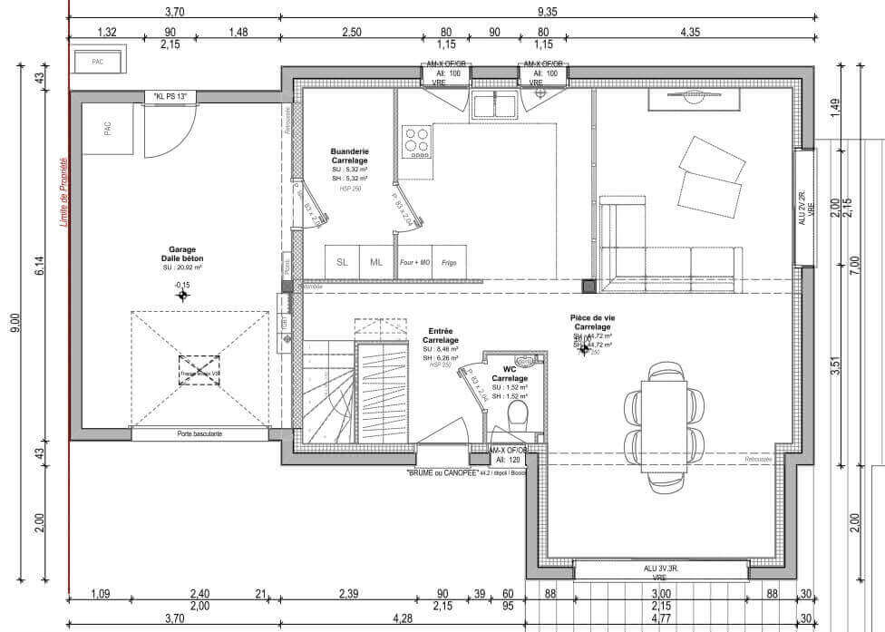
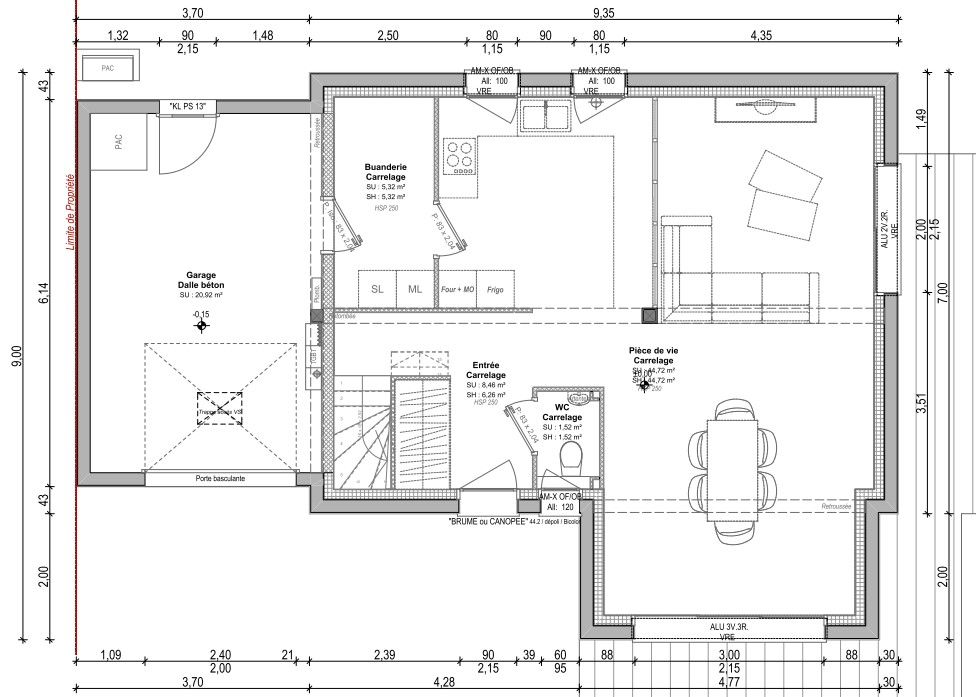
Cet exemple de maison fonctionnelle de 108 m² habitables se compose :
Au rez-de-chaussée :
- Une pièce de vie spacieuse et lumineuse avec cuisine ouverte
- Une arrière-cuisine communicante avec le garage
- Un hall d’entrée avec grand placard
- Un WC
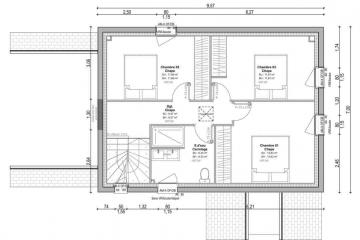
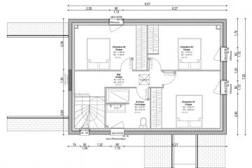
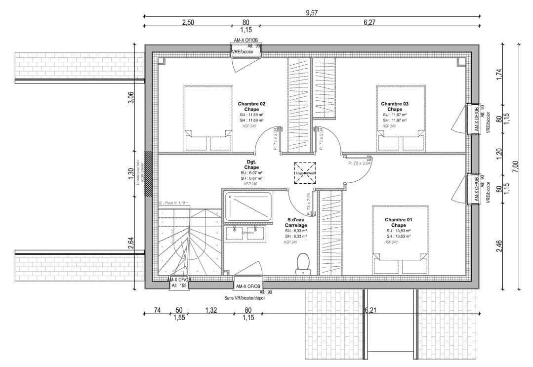
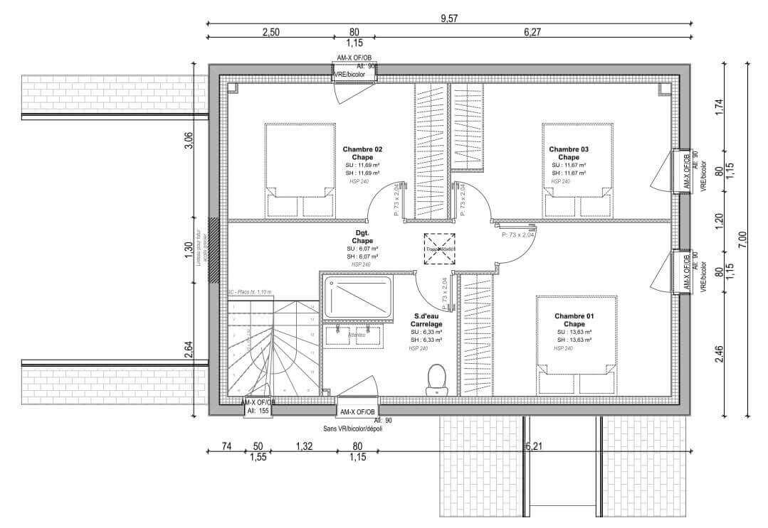
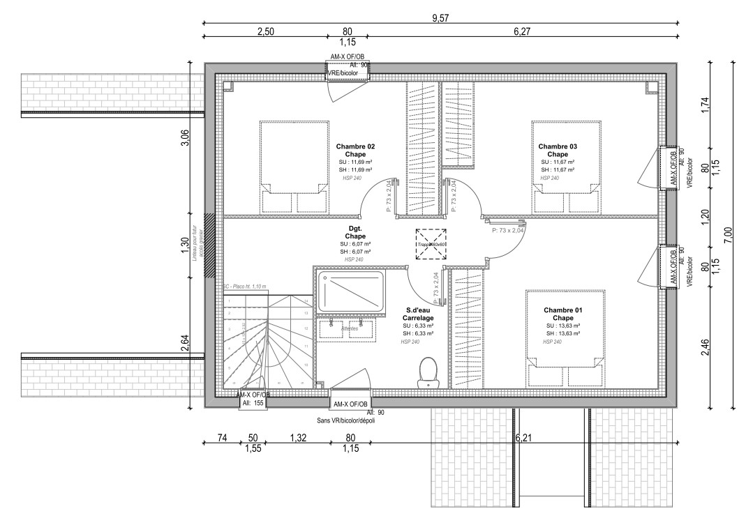
À l’étage :
- 3 chambres spacieuses avec placards
- Une salle d’eau avec WC
Ce projet est entièrement personnalisable, tant dans la conception que dans le choix des prestations.
Pour plus d’informations, contactez notre équipe commerciale MAISONS CRÉATION : 02 99 05 36 46
Informations complémentaires
| Chambre(s) : 3 | Salle(s) de bain : 1 | Surface habitable : 108 m² |
| Surface terrain : 436 m² | Surface annexe : 45 m² | Garage(s) : 1 |
| Prix : 270 008 € |
Géolocalisation du bien
*Terrain proposé et vendu par notre partenaire foncier selon disponibilité et autorisation de publicité, prix du terrain hors frais de notaire et d’hypothèque.
Prix maison : hors papiers peints, peintures, revêtements de sol dans les chambres, cuisines, meubles vasques, et faïences (modifiable sans préavis, prix variables suivant les prestations souhaitées) hors frais d’hypothèque.




