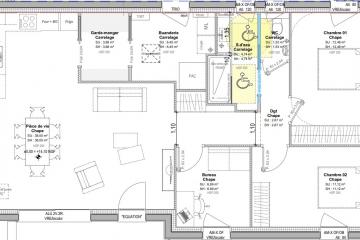
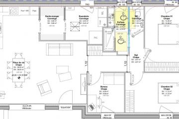
Sur terrain de 386 m² à proximité en plein bourg de Pleurutit et de toutes ses commodités et commerces, nous vous proposons une MAISON RE2020 à étage d'une surface de 89 m² disposant d'un bel espace de vie très lumineux, de 3 chambres, un bureau, une arrière cuisine ainsi qu'une buanderie. Projet conçu dans les normes PMR.
Chez Maisons Creation, tous nos projets sont intégralement personnalisés, tant au niveau de la conception intérieure et architecturale du projet, qu'à la définition du niveau de prestations que vous souhaitez.
Projet incluant prix du terrain, garanties et assurances incluses, hors frais annexes liés au terrain et aux finitions de la maison.
Informations complémentaires
| Chambre(s) : 3 | Salle(s) de bain : 1 | Surface habitable : 89 m² |
| Surface terrain : 386 m² | Surface annexe : 39 m² | Garage(s) : 1 |
| Prix : 309 000 € |
Géolocalisation du bien
*Terrain proposé et vendu par notre partenaire foncier selon disponibilité et autorisation de publicité, prix du terrain hors frais de notaire et d’hypothèque.
Prix maison : hors papiers peints, peintures, revêtements de sol dans les chambres, cuisines, meubles vasques, et faïences (modifiable sans préavis, prix variables suivant les prestations souhaitées) hors frais d’hypothèque.






