MAISONS CREATION vous propose un projet de construction personnalisable situé à Pacé, sur un terrain de 377 m².
Maison 122 m² – 4 chambres
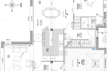
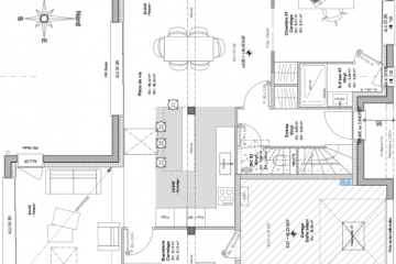
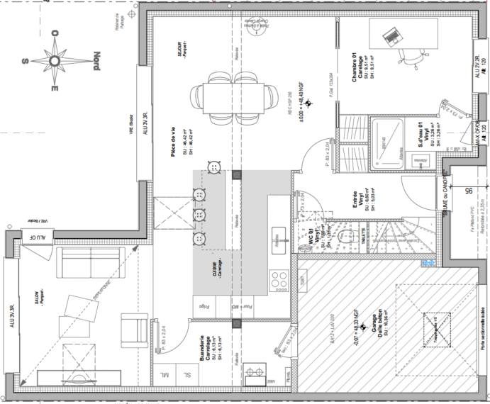
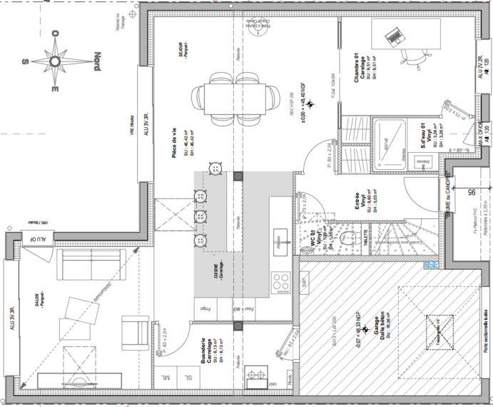
Cet exemple de maison de 122 m² habitables se compose :
Au rez-de-chaussée :
- Une entrée indépendante
- Une pièce de vie de 46 m², avec une hauteur sous plafond de 3 m dans le salon
- Une chambre avec salle d’eau
- Des WC séparés
- Une buanderie
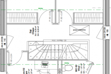
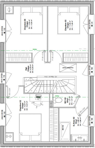
À l’étage :
- 3 chambres de 11 à 13 m²
- Une salle d’eau
- Des WC séparés
Annexes
- Un garage
NON MANDATÉ POUR LA VENTE DES TERRAINS
Maisons CREATION Rennes n’est pas chargé de réaliser la vente des terrains à bâtir mentionnés dans ces annonces.
Maisons CREATION Rennes agit uniquement en qualité de constructeur.
Pour de plus amples renseignements, contactez notre équipe commerciale MAISONS CREATION : 02 99 05 36 46
Informations complémentaires
| Chambre(s) : 4 | Salle(s) de bain : 2 | Surface habitable : 122 m² |
| Surface terrain : 377 m² | Surface annexe : 46 m² | Garage(s) : 1 |
| Prix : 382 410 € |
Géolocalisation du bien
*Terrain proposé et vendu par notre partenaire foncier selon disponibilité et autorisation de publicité, prix du terrain hors frais de notaire et d’hypothèque.
Prix maison : hors papiers peints, peintures, revêtements de sol dans les chambres, cuisines, meubles vasques, et faïences (modifiable sans préavis, prix variables suivant les prestations souhaitées) hors frais d’hypothèque.




